продаж 2-к квартира Київ, Солом`янський, 4365000 грн.

4 365 000 грн
Київ 22 Листопада 2025, 06:30 Переглядів: 735
продаж 2-к квартира Київ, Солом`янський, 4365000 грн. продаж 2-к квартира Київ, Солом`янський, 4365000 грн. продаж 2-к квартира Київ, Солом`янський, 4365000 грн.
Контакти для зв’язку: 0505394621 Відділ продажу Ліко-Нерухомість. Без комісії.
Продаж 2-к у Жк LikoGrad Perfect Town!
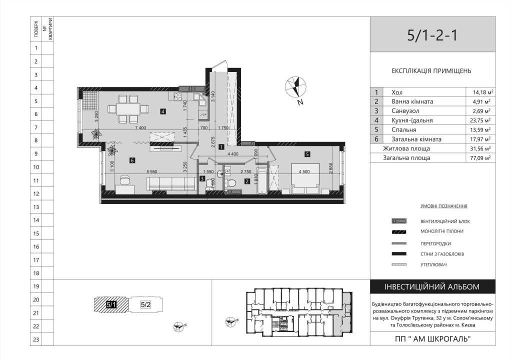
Площа - 77,22 м
Будинок побудовано, ідуть внутрішні інженерні роботи, монтаж ліфтів
Введення в експлуатацію - літо 2026р.
Детальна інформація у відділі продажу. Вул. Максимовича 32А.
Тел код:5170097d
  • Объявление от
    компании

Характеристики

  • Кількість кімнат
    2 кімнати
  • Загальна площа
    77.22 м²
  • Житлова площа
    32 м²
  • Площа кухні
    23.8 м²
  • Тип будинку
    монолітний
  • Тип будівлі
    На етапі будівництва
  • Поверх
    15
  • Поверховість будинку
    23
  • Стан квартири
    потребує капітального ремонту
Ціна:4 365 000 грн
Ціна згідно з курсом
    Поделитесь объявлением с друзьями
    • Київ
    • +380732 144941

    Схожі пропозиції

    показать ещё
    Загрузка...