продаж 2-к квартира Київ, Солом`янський, 3795000 грн.

3 795 000 грн
Київ 22 Листопада 2025, 06:30 Переглядів: 882
продаж 2-к квартира Київ, Солом`янський, 3795000 грн. продаж 2-к квартира Київ, Солом`янський, 3795000 грн. продаж 2-к квартира Київ, Солом`янський, 3795000 грн. продаж 2-к квартира Київ, Солом`янський, 3795000 грн.
Контакти для зв’язку: 0505394621 Відділ продажу Ліко-Нерухомість. Продаж 2-к квартири у Жк "Ліко-Град Perfect Town"!
Квартира в будинку на етапі будівництва.
Будинок побудовано, ідуть внутрішні інженерні роботи

Запланований термін введення в експлуатацію - 2 квартал 2026 року.

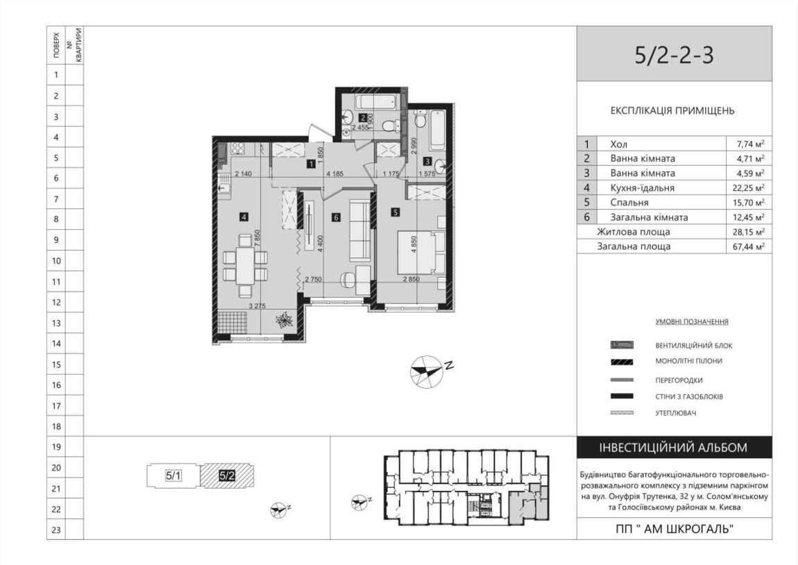
Загальна площа - 67, 44 кв.м.
Комфортне планування, яке заслуговує вашої уваги!

Без комісії!

Тел код:73a94a03
  • Объявление от
    компании

Характеристики

  • Кількість кімнат
    2 кімнати
  • Загальна площа
    68.12 м²
  • Житлова площа
    28.83 м²
  • Площа кухні
    22.25 м²
  • Тип будинку
    монолітний
  • Тип будівлі
    На етапі будівництва
  • Поверх
    16
  • Поверховість будинку
    23
  • Стан квартири
    потребує капітального ремонту
Ціна:3 795 000 грн
Ціна згідно з курсом
    Поделитесь объявлением с друзьями
    • Київ
    • +380732 144941

    Схожі пропозиції

    показать ещё
    Загрузка...