Житомир
25 Листопада 2025, 06:30
Переглядів: 31
- aspo.biz
- Оголошень на сайті: 1029
- Переглянути всі оголошення автора
- Подписаться на автора
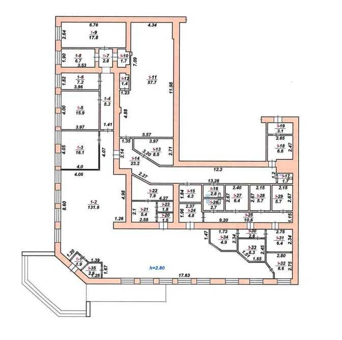
Контакти для зв’язку: 0504327942 Євгенія. Пропонується до продажу нежитлове приміщення (група приміщень) філії банку та рухоме майно в кількості 113 одиниць, які знаходяться за адресою: м. Житомир, вул. Небесної Сотні, буд. 41. Продаж відбуватиметься на умовах аукціону на ресурсі електронної системи Ат "Прозорро. Продажі" без можливості зниження початкової ціни. Ціна вказана стартова.
Загальна площа приміщення складає 401,2 кв.м, основна площа 254,8 кв.м, допоміжна площа 146,4 кв.м, рік побудови 1994.
Основні конструктивні елементи: фундамент з/бетон; матеріал стін цегла; перекриття з/бетон; підлога бетон. Інженерне обладнання: електрика, водопровід, каналізація, вид опалення місцеве/автономне. Висота 3,4 м.
Внутрішнє оздоблення: підлога плитка/лінолеум; стіни плитка/пофарбовані; вікна металопластикові; стелі натяжні/пофарбовані; двері вхідні металеві, двері внутрішні металеві/дерев’яні.
Внутрішні інженерні мережі: електроосвітлення, опалення, водопостачання централізоване; міська каналізація. Ліфт відсутній. Наявний окремий фасадний вхід в приміщення. Загальний технічний стан приміщення задовільний.
Приміщення обладнане системами цифрового відеоспостереження зовнішнього периметру, охоронної сигналізації, контролю санкційного доступу, відеоспостереження, охоронно-тривожною сигналізацією, вогнегасниками. Для підтримання постійного рівня температури та вологості повітря встановлені кондиціонери.
За додатковою інформацією звертайтесь за вказаним ном
Загальна площа приміщення складає 401,2 кв.м, основна площа 254,8 кв.м, допоміжна площа 146,4 кв.м, рік побудови 1994.
Основні конструктивні елементи: фундамент з/бетон; матеріал стін цегла; перекриття з/бетон; підлога бетон. Інженерне обладнання: електрика, водопровід, каналізація, вид опалення місцеве/автономне. Висота 3,4 м.
Внутрішнє оздоблення: підлога плитка/лінолеум; стіни плитка/пофарбовані; вікна металопластикові; стелі натяжні/пофарбовані; двері вхідні металеві, двері внутрішні металеві/дерев’яні.
Внутрішні інженерні мережі: електроосвітлення, опалення, водопостачання централізоване; міська каналізація. Ліфт відсутній. Наявний окремий фасадний вхід в приміщення. Загальний технічний стан приміщення задовільний.
Приміщення обладнане системами цифрового відеоспостереження зовнішнього периметру, охоронної сигналізації, контролю санкційного доступу, відеоспостереження, охоронно-тривожною сигналізацією, вогнегасниками. Для підтримання постійного рівня температури та вологості повітря встановлені кондиціонери.
За додатковою інформацією звертайтесь за вказаним ном
-
Объявление откомпании
Характеристики
-
Тип нерухомостіОфіс
-
Загальна площа401.2
Ціна:8 351 400 грн
- Житомир
- +380732 144941