Київ
11 Жовтня 2025, 06:30
Переглядів: 116
- aspo.biz
- Оголошень на сайті: 1029
- Переглянути всі оголошення автора
- Подписаться на автора
Контакти для зв’язку: 0984444440 Алексей Мурин. Без комісії!
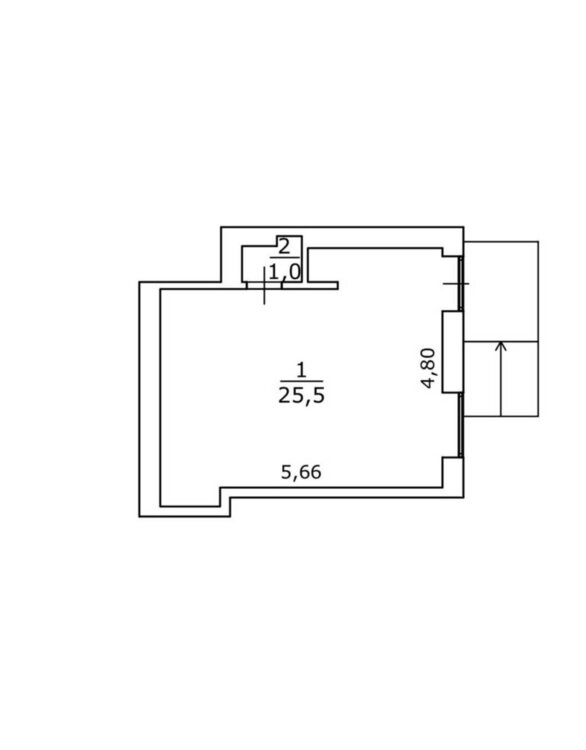
Ексклюзивне фасадне приміщення площею 26,5 м2 на першому поверсі з окремим входом здане в оренду діючій кав’ярні Рідні.
Об’єкт має сучасний ремонт у стилі лофт, велике панорамне вікно, що чудово видно з дороги, та зону перед входом, яку орендар використовує під літній майданчик. Усередині стильний інтер’єр, затишна атмосфера й продумане планування, що дозволяє комфортно обслуговувати гостей.
Локація відмінна: поруч метро Дорогожичі, вулиця Олени Теліги, супермаркет Атб, Державний архів Києва, навчальні заклади, автошколи та густонаселені житлові квартали. Поруч також парк Бабин Яр, який приваблює туристів і забезпечує додатковий трафік.
Активний пішохідний і автомобільний потік, зручні під’їзди та можливість розміщення фасадної реклами роблять це місце привабливим для будь-якого формату бізнесу.
Надійний орендар та стабільна локація роблять цей об’єкт прибутковою інвестицією з прогнозованим доходом. код:15bad9c2
Ексклюзивне фасадне приміщення площею 26,5 м2 на першому поверсі з окремим входом здане в оренду діючій кав’ярні Рідні.
Об’єкт має сучасний ремонт у стилі лофт, велике панорамне вікно, що чудово видно з дороги, та зону перед входом, яку орендар використовує під літній майданчик. Усередині стильний інтер’єр, затишна атмосфера й продумане планування, що дозволяє комфортно обслуговувати гостей.
Локація відмінна: поруч метро Дорогожичі, вулиця Олени Теліги, супермаркет Атб, Державний архів Києва, навчальні заклади, автошколи та густонаселені житлові квартали. Поруч також парк Бабин Яр, який приваблює туристів і забезпечує додатковий трафік.
Активний пішохідний і автомобільний потік, зручні під’їзди та можливість розміщення фасадної реклами роблять це місце привабливим для будь-якого формату бізнесу.
Надійний орендар та стабільна локація роблять цей об’єкт прибутковою інвестицією з прогнозованим доходом. код:15bad9c2
-
Объявление откомпании
Характеристики
-
Тип нерухомостіТоргове приміщення
-
Загальна площа26
Ціна:125 000 $
- Київ
- +380732 144941