Київ
8 Жовтня 2025, 06:30
Переглядів: 123
- aspo.biz
- Оголошень на сайті: 1029
- Переглянути всі оголошення автора
- Подписаться на автора
Контакти для зв’язку: 0984444440 Алексей Мурин. Без комісії для покупця!
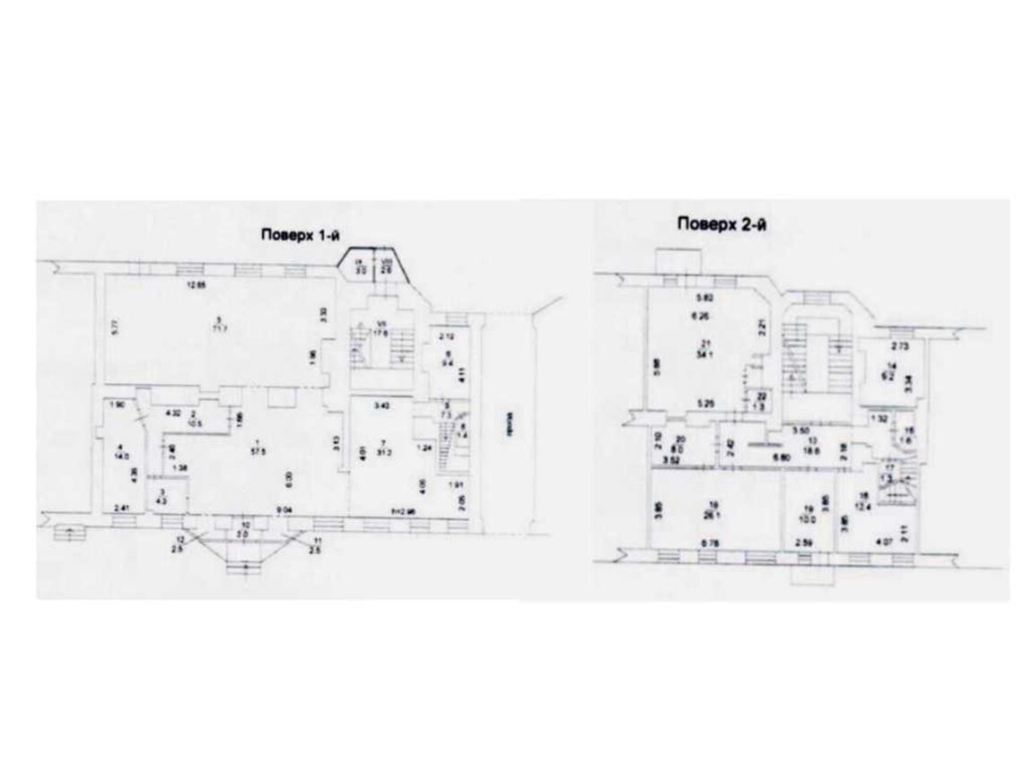
Продається комерційне приміщення з вітринами та окремим фасадним входом, розташоване у самому центрі Києва на вулиці Саксаганського, 42/80. Загальна площа обєкта становить 338 м2, що охоплює два рівні з продуманим плануванням та якісним оздобленням. Це простір, який вже з перших хвилин формує відчуття престижу та довіри.
Приміщення має стильний сучасний ремонт, зонування під офіс або представництво з просторою рецепцією, робочими залами, кабінетами для персоналу, переговорними кімнатами, зонами відпочинку, технічними приміщеннями й санвузлами. Великі вікна не лише забезпечують достатнє природне освітлення, але й служать ефективним рекламним інструментом для бізнесу.
Фасад виходить на активну частину вулиці Саксаганського з постійним пішохідним і автомобільним трафіком. Вхідна група представницька, з широкими сходами та прозорими дверима. Обєкт добре проглядається з проїжджої частини та тротуару. Це ідеальне місце для офісу відкритого типу, медичного центру, школи або мовної студії, юридичної або консалтингової компанії.
Перед будівлею облаштована парковка на 10 машиномісць, що є рідкістю для центральної частини міста та беззаперечною перевагою для клієнтів і працівників.
Локація одна з найсильніших переваг цього об’єкта. В радіусі до 3 хвилин пішки розміщені популярні заклади громадського харчування та обслуговування: Musafir, Passenger Gastro Bar, кафе Esco, Universal Bank, 044 Barbershop, готе
Продається комерційне приміщення з вітринами та окремим фасадним входом, розташоване у самому центрі Києва на вулиці Саксаганського, 42/80. Загальна площа обєкта становить 338 м2, що охоплює два рівні з продуманим плануванням та якісним оздобленням. Це простір, який вже з перших хвилин формує відчуття престижу та довіри.
Приміщення має стильний сучасний ремонт, зонування під офіс або представництво з просторою рецепцією, робочими залами, кабінетами для персоналу, переговорними кімнатами, зонами відпочинку, технічними приміщеннями й санвузлами. Великі вікна не лише забезпечують достатнє природне освітлення, але й служать ефективним рекламним інструментом для бізнесу.
Фасад виходить на активну частину вулиці Саксаганського з постійним пішохідним і автомобільним трафіком. Вхідна група представницька, з широкими сходами та прозорими дверима. Обєкт добре проглядається з проїжджої частини та тротуару. Це ідеальне місце для офісу відкритого типу, медичного центру, школи або мовної студії, юридичної або консалтингової компанії.
Перед будівлею облаштована парковка на 10 машиномісць, що є рідкістю для центральної частини міста та беззаперечною перевагою для клієнтів і працівників.
Локація одна з найсильніших переваг цього об’єкта. В радіусі до 3 хвилин пішки розміщені популярні заклади громадського харчування та обслуговування: Musafir, Passenger Gastro Bar, кафе Esco, Universal Bank, 044 Barbershop, готе
-
Объявление откомпании
Характеристики
-
Тип нерухомостіТоргове приміщення
-
Загальна площа338
Ціна:1 100 000 $
- Київ
- +380732 144941