Объявление больше не публикуется на сайте
продаж об’єкт сфери послуг Київ, Печерський, 450000 $
450 000 $
Київ
8 Жовтня 2025, 06:30
Переглядів: 105
Контакти для зв’язку: 0984444440 Алексей Мурин. Без комісії для покупця!
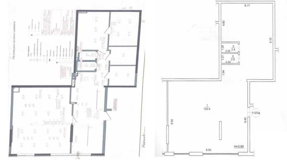
Продаж комерційного приміщення з готовим орендним бізнесом
Адреса: м. Київ, вул. Василя Тютюнника, 51/1А
Продається сучасне комерційне приміщення на 2-му поверсі у самому центрі Печерського району Києва, у складі житлового комплексу Французький квартал.
Готовий орендний бізнес: приміщення здане в оренду стоматологічній клініці. Повністю ренововане, якісний ремонт та дороге обладнання.
Можливий продаж як готовий бізнес разом з орендарем. А також є можливість просто викупити приміщення з усім інвентарем і ремонтом, включаючи стоматологічне обладнання (450 000 $ + 200 000 $) Обговорюється
Статус: нежитловий фонд.
Локація:
10 хвилин від м. Либідська
безпосередньо в Жк Французький квартал
Розвинута інфраструктура: поблизу Сільпо, Novus, Центр патріотичного виховання, Парк Ім. Заньковецької, дитячі садки та школи
Планування:
рецепція та чекальня
декілька кабінетів лікарів
стоматологічні станки та зона стерилізації
технічні та санітарні приміщення
Фасадний вхід, великі вітрини, ясне зонування для різних сфер послуг.
Підходить під медицину, косметологію, офіси, салон краси, клініку або офіс з орендарем. код:e433766d
Продаж комерційного приміщення з готовим орендним бізнесом
Адреса: м. Київ, вул. Василя Тютюнника, 51/1А
Продається сучасне комерційне приміщення на 2-му поверсі у самому центрі Печерського району Києва, у складі житлового комплексу Французький квартал.
Готовий орендний бізнес: приміщення здане в оренду стоматологічній клініці. Повністю ренововане, якісний ремонт та дороге обладнання.
Можливий продаж як готовий бізнес разом з орендарем. А також є можливість просто викупити приміщення з усім інвентарем і ремонтом, включаючи стоматологічне обладнання (450 000 $ + 200 000 $) Обговорюється
Статус: нежитловий фонд.
Локація:
10 хвилин від м. Либідська
безпосередньо в Жк Французький квартал
Розвинута інфраструктура: поблизу Сільпо, Novus, Центр патріотичного виховання, Парк Ім. Заньковецької, дитячі садки та школи
Планування:
рецепція та чекальня
декілька кабінетів лікарів
стоматологічні станки та зона стерилізації
технічні та санітарні приміщення
Фасадний вхід, великі вітрини, ясне зонування для різних сфер послуг.
Підходить під медицину, косметологію, офіси, салон краси, клініку або офіс з орендарем. код:e433766d
-
Объявление откомпании
Характеристики
-
Тип нерухомостіІнше
-
Загальна площа138
Ціна:450 000 $
- Київ