Київ
23 Листопада 2025, 06:30
Переглядів: 282
- aspo.biz
- Оголошень на сайті: 1029
- Переглянути всі оголошення автора
- Подписаться на автора
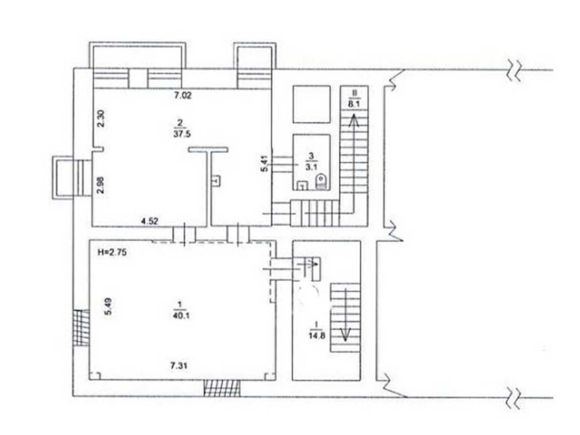
Контакти для зв’язку: 0504128622 Анна Пірог. Продаж комерційного приміщення в цетрі Києва, вул. Винниченка, 7,
106 кв метрів. Шевченківський район в самому серці столиці, поруч із Львівською та Софіївською площами, Пейзажна Алея, метро Золоті Ворота.
Завжди є електроенергія. Будинок на окремій лінії.
Два окремі входи зручно для поділу або різних напрямів діяльності
Високоякісний дизайнерський ремонт виконано у 2021 році
Встановлено сучасну систему вентиляції потужну та ефективну, що забезпечує комфортний мікроклімат у будь-яку пору року, додатково є кондиціонер.
Тепловий насос гарантує мінімальні витрати на опалення, вздовж приміщення йде труба опалення будинку.
Тепло взимку, прохолодно влітку приміщення зручне для роботи в будь-яких умовах
Облаштовані великі дизайнерські ніши з стильним скленням вони не лише надають простору затишну атмосферу, але й забезпечують природну інсоляцію
Товщина зовнішніх стін 50 см. Сталінка, де такі приміщення проектувались, як бомбосховища.
Всі технічні облаштування, інженерні та ремонтні роботи здійснювались відомим архітектурно-інженерним бюро.
В цьому приміщенні все на найвищому рівні. Це рідкісне поєднання локації, якості, надійності, безпеки, естетичності, економності в експлуатації та комфорту
Двері - це роботи відомої української майстрині. Приміщення ідеально підходить для студії психолога, кафе, калянного бару, бару, кафе, офісу, шоуруму, салону краси, студії, галереї, клініки, творчого простору або будь-якого іншого б
106 кв метрів. Шевченківський район в самому серці столиці, поруч із Львівською та Софіївською площами, Пейзажна Алея, метро Золоті Ворота.
Завжди є електроенергія. Будинок на окремій лінії.
Два окремі входи зручно для поділу або різних напрямів діяльності
Високоякісний дизайнерський ремонт виконано у 2021 році
Встановлено сучасну систему вентиляції потужну та ефективну, що забезпечує комфортний мікроклімат у будь-яку пору року, додатково є кондиціонер.
Тепловий насос гарантує мінімальні витрати на опалення, вздовж приміщення йде труба опалення будинку.
Тепло взимку, прохолодно влітку приміщення зручне для роботи в будь-яких умовах
Облаштовані великі дизайнерські ніши з стильним скленням вони не лише надають простору затишну атмосферу, але й забезпечують природну інсоляцію
Товщина зовнішніх стін 50 см. Сталінка, де такі приміщення проектувались, як бомбосховища.
Всі технічні облаштування, інженерні та ремонтні роботи здійснювались відомим архітектурно-інженерним бюро.
В цьому приміщенні все на найвищому рівні. Це рідкісне поєднання локації, якості, надійності, безпеки, естетичності, економності в експлуатації та комфорту
Двері - це роботи відомої української майстрині. Приміщення ідеально підходить для студії психолога, кафе, калянного бару, бару, кафе, офісу, шоуруму, салону краси, студії, галереї, клініки, творчого простору або будь-якого іншого б
-
Объявление откомпании
Характеристики
-
Тип нерухомостіІнше
-
Загальна площа106
Ціна:130 000 $
- Київ
- +380732 144941