Объявление больше не публикуется на сайте
продаж торгові площі Київ, Голосіївський, 265000 $
265 000 $
Київ
3 Травня 2025, 06:31
Переглядів: 241
Контакти для зв’язку: 0971201111 Столичний Альянс Нерухомості. Без %. Супер фасад на території комплекса!
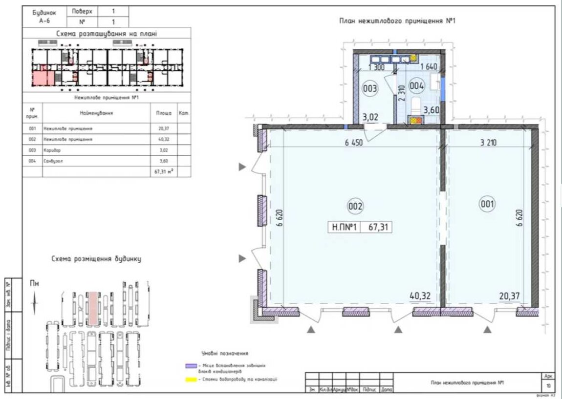
Кутове приміщення вікна якого виходять на аллею фонтанів, та на найбільший дитячий майданчик комплексу!
Будинок " Віндзор" Найкраще приміщення з фасадом на фонтани Жк "Нова Англія, вул. Максимовича Максима. 1-й поверх, загальна площа 70,8 кв.м, п’ять входів, фасад виходять на найкращу локацію в комплексі з фонтанами, де зосереджена найжвавіша діяльність серед мешканців! Оренда такого приміщення буде 25-30 у.о кв.м. Висота стелі Н=3,5 метри, лічильники на воду, електро та тепло (автономна котельня в комплексі).
-ЖК "Нова Англія" це надзвичайне місто в місті, 14-будинків на 4600 квартир, підземний та наземний паркінг, велика школа, дитячий садок, якісні дитячі майданчики, дитячі гуртки, спортивний майданчик, тенісний корт, міні-футбол, барбекю, салони, клініки, сімейний врач, майданчик для собак, кафе, ресторан, маркети. Метро "Васильківська" 10-15 хвилин пішки.
Агентство у "Новій Англії", Оператитивний Показ ! код:5fe3cf39
Кутове приміщення вікна якого виходять на аллею фонтанів, та на найбільший дитячий майданчик комплексу!
Будинок " Віндзор" Найкраще приміщення з фасадом на фонтани Жк "Нова Англія, вул. Максимовича Максима. 1-й поверх, загальна площа 70,8 кв.м, п’ять входів, фасад виходять на найкращу локацію в комплексі з фонтанами, де зосереджена найжвавіша діяльність серед мешканців! Оренда такого приміщення буде 25-30 у.о кв.м. Висота стелі Н=3,5 метри, лічильники на воду, електро та тепло (автономна котельня в комплексі).
-ЖК "Нова Англія" це надзвичайне місто в місті, 14-будинків на 4600 квартир, підземний та наземний паркінг, велика школа, дитячий садок, якісні дитячі майданчики, дитячі гуртки, спортивний майданчик, тенісний корт, міні-футбол, барбекю, салони, клініки, сімейний врач, майданчик для собак, кафе, ресторан, маркети. Метро "Васильківська" 10-15 хвилин пішки.
Агентство у "Новій Англії", Оператитивний Показ ! код:5fe3cf39
-
Объявление откомпании
Характеристики
-
Тип нерухомостіТоргове приміщення
-
Загальна площа71
Ціна:265 000 $
- Київ