Харьков
6 Вересня 2025, 06:31
Переглядів: 742
- aspo.biz
- Оголошень на сайті: 1029
- Переглянути всі оголошення автора
- Подписаться на автора
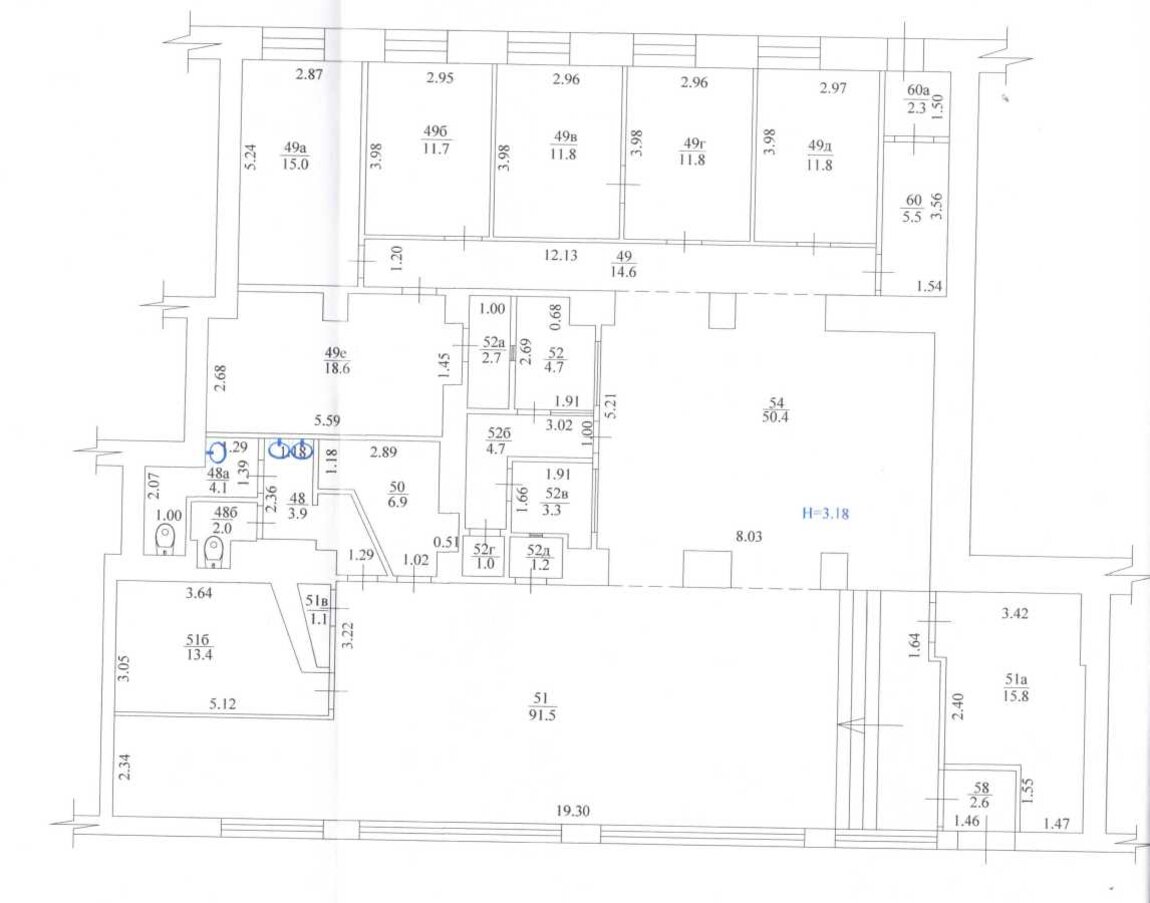
Контакти для зв’язку: 0673724118 Олена. продаж нежитлового приміщення: м.Харків, Гімназійна набережна, 22 (колишня Червоношкільна).
Характеристика приміщення:
Загальна площа - 312,4 кв.м., в т.ч. дві великі операційні зали площею 91,5 кв.м. та 50,4 кв.м.
Приміщення має два виходи: центральний (на Гімназійну набережну) та запасний (у двір житлового будинку).
Централізоване опалення, встановлена теплова рамка та лічильник.
Електропотужність - 15 кВт. Живлення напряму від підстанції, не від електромережі житлового будинку.
Встановлені лічильники на водопостачання, електроенергію, опалення.
Приміщення обладнане пожежно-тривожною сигналізацією.
Місцерозташування: центральна частина міста Харків, в 500 метрах від ст. метро Гагаріна. Район забудований житловими 9-поверховими будинками 60-80 х років, через дорогу від приміщення річка та набережна. По сусідству магазини, офіси.
Власник - юр.особа. Вартість із Пдв. код:df0f2ca6
Характеристика приміщення:
Загальна площа - 312,4 кв.м., в т.ч. дві великі операційні зали площею 91,5 кв.м. та 50,4 кв.м.
Приміщення має два виходи: центральний (на Гімназійну набережну) та запасний (у двір житлового будинку).
Централізоване опалення, встановлена теплова рамка та лічильник.
Електропотужність - 15 кВт. Живлення напряму від підстанції, не від електромережі житлового будинку.
Встановлені лічильники на водопостачання, електроенергію, опалення.
Приміщення обладнане пожежно-тривожною сигналізацією.
Місцерозташування: центральна частина міста Харків, в 500 метрах від ст. метро Гагаріна. Район забудований житловими 9-поверховими будинками 60-80 х років, через дорогу від приміщення річка та набережна. По сусідству магазини, офіси.
Власник - юр.особа. Вартість із Пдв. код:df0f2ca6
-
Объявление откомпании
Характеристики
-
Тип нерухомостіОфіс
-
Загальна площа312.4
Ціна:165 000 $
- Харьков
- +380732 144941