Ирпень
18 Листопада 2025, 06:30
Переглядів: 79
- aspo.biz
- Оголошень на сайті: 1029
- Переглянути всі оголошення автора
- Подписаться на автора
Контакти для зв’язку: 0985082839 Олександр. Документам більше 3-х років. Ділянка 7 соток.
Ділянка кутова навпроти ліс. Ідеально підходить для поцінювачів тиші та природи.
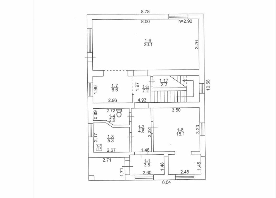
Площа газифікованого будинку 163м.кв., що легко дозволяє вмістити чималу сім’ю. Кімната господарів має свій санвузол та гардеробну, а також простору та дуже світлу чілаут-зону для роботи, відпочинку та йоги. Дві дитячі кімнати зі спеціально спроектованими лазами на горище- додаткові ігрові зони, які точно сподобаються дітям. Поруч великий санвузол з вікном, де легко розміщується велика кутова джакузі.
На першому поверсі: простора котельня з сучасним котлом, баком на 200л та можливістю встановлення пральної та сушильної машини і організації господарчого блоку. Навпроти багатофункціональна гостьова кімната, яка може бути кабінетом, кімнатою відпочинку, третьою дитячою чи кімнатою, де можуть проживати ваші батьки похилого віку. Поруч є санвузол з душовою.
Та головна родзинка будинку простора кухня-столова-вітальня на три вікна, з місцем під камін та виходом на терасу, де росте виноград.
Перевагою цього варіанту також є те, що всі основні ремонтні роботи завершені(стяжка зі звукоізоляцією, плитка майже скрізь покладена, виготовка стін під шпалери чи фарбування, підвісна стеля всюди є та вже виготовлена, зроблена повна розводка під кондиціонери, сигналізацію та відео спостереження, вся електрика, сантехнічні труби, встановлені інсталяції для підвісних унітазів. Вода, опалення, каналізація та газ вже працюют
Ділянка кутова навпроти ліс. Ідеально підходить для поцінювачів тиші та природи.
Площа газифікованого будинку 163м.кв., що легко дозволяє вмістити чималу сім’ю. Кімната господарів має свій санвузол та гардеробну, а також простору та дуже світлу чілаут-зону для роботи, відпочинку та йоги. Дві дитячі кімнати зі спеціально спроектованими лазами на горище- додаткові ігрові зони, які точно сподобаються дітям. Поруч великий санвузол з вікном, де легко розміщується велика кутова джакузі.
На першому поверсі: простора котельня з сучасним котлом, баком на 200л та можливістю встановлення пральної та сушильної машини і організації господарчого блоку. Навпроти багатофункціональна гостьова кімната, яка може бути кабінетом, кімнатою відпочинку, третьою дитячою чи кімнатою, де можуть проживати ваші батьки похилого віку. Поруч є санвузол з душовою.
Та головна родзинка будинку простора кухня-столова-вітальня на три вікна, з місцем під камін та виходом на терасу, де росте виноград.
Перевагою цього варіанту також є те, що всі основні ремонтні роботи завершені(стяжка зі звукоізоляцією, плитка майже скрізь покладена, виготовка стін під шпалери чи фарбування, підвісна стеля всюди є та вже виготовлена, зроблена повна розводка під кондиціонери, сигналізацію та відео спостереження, вся електрика, сантехнічні труби, встановлені інсталяції для підвісних унітазів. Вода, опалення, каналізація та газ вже працюют
-
Объявление откомпании
Характеристики
-
Стан будинкупотребує ремонту
-
Кількість поверхів2 поверховий
-
Площа будинку163 м²
-
Площа ділянки7 (сотки)
-
Висота стелі290 см
-
Санвузол2 і більше
-
Кількість кімнат5 і більше кімнат
-
Житлова площа78 м²
-
Площа кухні36 м²
Ціна:154 000 $
- Ирпень
- +380732 144941