Объявление больше не публикуется на сайте
продаж 3-к будинок Бучанський, Гостомель, 90000 $
90 000 $
Гостомель
9 Листопада 2025, 06:30
Переглядів: 65
Контакти для зв’язку: 0965943014 Ксенія. Таунхаус в Км Лісове з ремонтом на 50%. Без комісії
Пропонується до продажу сучасний таунхаус у лісовій частині Гостомеля.
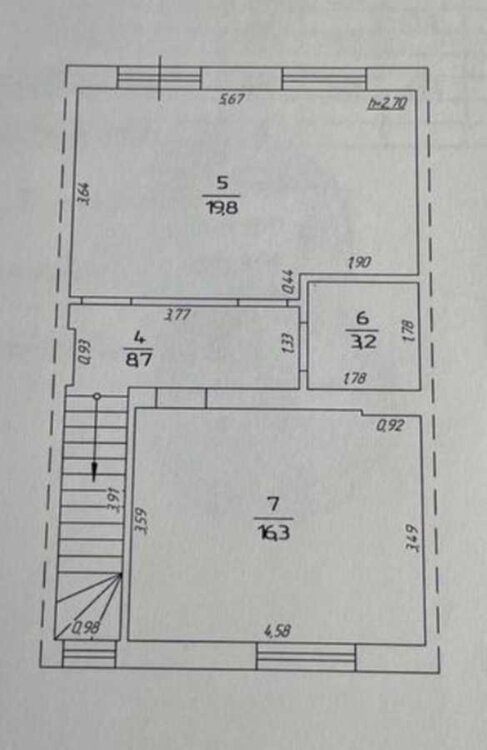
Площа таунхаусу 96.6 м2
Власне паркомісце для авто.
Задній двір в оточені сосен.
Є готовий дизайн проєкт
Будинок вже підготовлений до чистового ремонту, що дозволяє відразу переходити до оздоблення.
Виконані такі роботи:
Розведена електрика
Каналізація та водопостачання разведено по точках, встановленні інсталяції Geberit
Стіни - чистова штукатурка з використанням скло полотна для міцності і запобігання тріщин, також зроблена шумоізоляція;
- Система тепла підлога Kermi;
-Вікна Rehau
Опалення: індивідуальне газове одне з найзручніших і найекономічніших рішень.
На першому поверсі водяна тепла підлога, на другому встановлені радіатори, і тепла підлога в санвузлах, що забезпечує комфорт у будь-яку пору року.
Переваги локації:
Містечко розташоване серед високих сосен чисте повітря та гармонія з природою.
Поруч парк Щасливий, великий і затишний, де можна гуляти, кататись на велосипеді та влаштовувати пробіжки.
Деталі та умови придбання:
0% комісії
Можливий продаж по програмам: ЄОселя, Сертифікат, Постанова
Звертайтесь на зв’язку у всіх месенджерах. код:e72e0eb6
Пропонується до продажу сучасний таунхаус у лісовій частині Гостомеля.
Площа таунхаусу 96.6 м2
Власне паркомісце для авто.
Задній двір в оточені сосен.
Є готовий дизайн проєкт
Будинок вже підготовлений до чистового ремонту, що дозволяє відразу переходити до оздоблення.
Виконані такі роботи:
Розведена електрика
Каналізація та водопостачання разведено по точках, встановленні інсталяції Geberit
Стіни - чистова штукатурка з використанням скло полотна для міцності і запобігання тріщин, також зроблена шумоізоляція;
- Система тепла підлога Kermi;
-Вікна Rehau
Опалення: індивідуальне газове одне з найзручніших і найекономічніших рішень.
На першому поверсі водяна тепла підлога, на другому встановлені радіатори, і тепла підлога в санвузлах, що забезпечує комфорт у будь-яку пору року.
Переваги локації:
Містечко розташоване серед високих сосен чисте повітря та гармонія з природою.
Поруч парк Щасливий, великий і затишний, де можна гуляти, кататись на велосипеді та влаштовувати пробіжки.
Деталі та умови придбання:
0% комісії
Можливий продаж по програмам: ЄОселя, Сертифікат, Постанова
Звертайтесь на зв’язку у всіх месенджерах. код:e72e0eb6
-
Объявление откомпании
Характеристики
-
Стан будинкупотребує ремонту
-
Кількість поверхів2 поверховий
-
Площа будинку96.6 м²
-
Площа ділянки1.26 (сотки)
-
Висота стелі270 см
-
Санвузол2 і більше
-
Кількість кімнат3 кімнати
-
Житлова площа36 м²
-
Площа кухні28.9 м²
Ціна:90 000 $
- Гостомель