Украина
Объявление больше не публикуется на сайте
продаж 4-к будинок Бориспільський, Гнідин, 155000 $
155 000 $
Київ
26 Березня 2025, 06:30
Переглядів: 693
Контакти для зв’язку: 0973215402 Анжела. Продається новий сучасний котедж в центрі Гнідина! 15 хвилин від метро Бориспільська
Пропонуємо до продажи просторий та затишний будинок у мальовничому селі Гнідин за 5 хвилин від Сільради. Висока якість будівництва. Будинок зводився для власного проживання.
Адреса: вулиця Щаслива
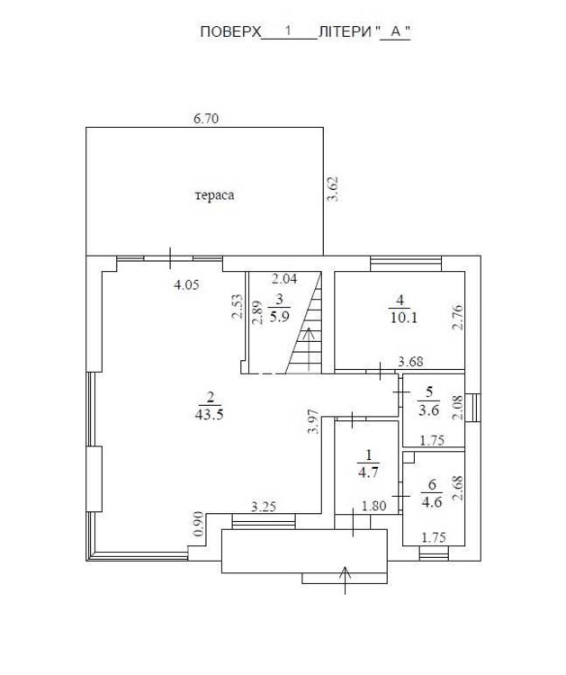
Площа будинку: проектна площа забудови 184 кв.м, (11 м на 8,5 м), загальна площа будинку - 148 кв.м, житлова 60,1 кв.м, кухня-вітальня 43,5 кв.м, тераса 24 кв.м.
Кімнат: 4
Стан: новий, збудований у 2023 році
Розташування: центр села, зручна і тиха локація. Закрита територія на 4 будинки. На вїзді на територію встановлено ворота.
Земельна ділянка: 6,11 соток. Можливий викуп сусідньої ділянки 5,56 соток.
Планування:
Перший поверх: котельня, санвузол, кімната (кабінет), велика кухня-вітальня з панорамними вікнами та виходом на терасу.
Другий поверх: бетонні сходи, три окремі спальні, велика ванна кімната, комора.
Технічні характеристики:
Дах: металочерепиця Ruukki, утеплення камяною ватою 200 мм, гідроізоляційна мембрана та паробар’єр.
Фундамент: стрічковий із монолітною плитою перекриття (глибина 1,4 м, товщина плити 15 см), утеплення та гідроізоляція стіродуром, обробка бітумною гідроізоляцією.
Стіни: газоблок Aeroc D500 (375 мм), утеплення камяною ватою Rockwool (100 мм), силіконова фасадна штукатурка. Повністю зроблена внутрішня штукатурка.
Перекриття: монолітна плита, утеплена камяною ватою та пінополістиролом для запобігання промерзанню та проникнен
Пропонуємо до продажи просторий та затишний будинок у мальовничому селі Гнідин за 5 хвилин від Сільради. Висока якість будівництва. Будинок зводився для власного проживання.
Адреса: вулиця Щаслива
Площа будинку: проектна площа забудови 184 кв.м, (11 м на 8,5 м), загальна площа будинку - 148 кв.м, житлова 60,1 кв.м, кухня-вітальня 43,5 кв.м, тераса 24 кв.м.
Кімнат: 4
Стан: новий, збудований у 2023 році
Розташування: центр села, зручна і тиха локація. Закрита територія на 4 будинки. На вїзді на територію встановлено ворота.
Земельна ділянка: 6,11 соток. Можливий викуп сусідньої ділянки 5,56 соток.
Планування:
Перший поверх: котельня, санвузол, кімната (кабінет), велика кухня-вітальня з панорамними вікнами та виходом на терасу.
Другий поверх: бетонні сходи, три окремі спальні, велика ванна кімната, комора.
Технічні характеристики:
Дах: металочерепиця Ruukki, утеплення камяною ватою 200 мм, гідроізоляційна мембрана та паробар’єр.
Фундамент: стрічковий із монолітною плитою перекриття (глибина 1,4 м, товщина плити 15 см), утеплення та гідроізоляція стіродуром, обробка бітумною гідроізоляцією.
Стіни: газоблок Aeroc D500 (375 мм), утеплення камяною ватою Rockwool (100 мм), силіконова фасадна штукатурка. Повністю зроблена внутрішня штукатурка.
Перекриття: монолітна плита, утеплена камяною ватою та пінополістиролом для запобігання промерзанню та проникнен
-
Объявление откомпании
Характеристики
-
Стан будинкупотребує ремонту
-
Кількість поверхів2 поверховий
-
Площа будинку148 м²
-
Площа ділянки6.11 (сотки)
-
Висота стелі275 см
-
Санвузол2 і більше
-
Кількість кімнат4 кімнати
-
Житлова площа60.1 м²
-
Площа кухні43.5 м²
Ціна:155 000 $
- Київ
Схожі пропозиції
показать ещё
Дом пос. Котовского
135 000 $
Продажа отличного дома в Широкой Балке
155 000 $
Продам дом на Долгой на участке 6 соток!
175 000 $