Одеса
9 Березня 2026, 14:41
Переглядів: 46
- slava_domstar
- Оголошень на сайті: 72
- Переглянути всі оголошення автора
- Подписаться на автора
Продам отличную однокомнатную квартиру в новом ЖК Атмосфера в Аркадии! До моря 5 минут пешком!
Вид во двор! Низкая цена‼️ В наличии‼️
Этаж 5 (25). Секция 6.
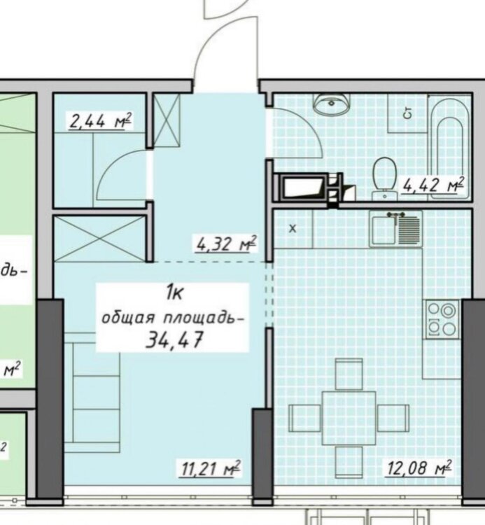
Общая площадь 34,47 м².
Состояние квартиры-от строителей.
Вид во двор, западная сторона
Большая кухня-гостинная 12,08 м² с панорамным окном.
Просторная спальня 11,21 м² с панорамными окнами.
Санузел, гардеробная.
Бронированная дверь.
Окна и балконные двери: 5-ти камерный ламинированный
металлопластиковый профиль. 2-х камерные энергосберегающие
стеклопакеты
В каждой квартире устанавлен теплосчетчик
Уникальные террасы на крыше с ландшафтным дизайном и панорамным видом на море!
Закрытая охраняемая территория с видеонаблюдением
В каждой секции предусматривается 4 лифта.
Подземный двухуровневый паркинг
Детский центр, бассейн, фитнес-клуб, SPA, магазины, кафе, эко-маркет, отделение банка и почты - всё это планируется на территории комплекса!
До Аркадии и лучших пляжей с клубами (Ибица, Итака, Red Line)– всего 5 минут пешком
В пешей доступности Парк Победы и Трасса Здоровья
Рядом супермаркеты, ТРЦ Гагарин Плаза и Ля Сильпо, рестораны, аптеки, салоны красоты, кинотеатр и тд.
Продажа по переуступке (переуступку оплачивает продавец)
Видео по запросу.
Продам чудову однокімнатну квартиру в новому ЖК Атмосфера в Аркадії! До моря 5 хвилин пішки!
Вигляд у двір! Низька ціна‼️ В наявності‼️
Поверх 5(25). Секція 6
Загальна площа 34,47 м ².
Стан квартири від будівельників.
Вид у двір, західна сторона
Велика кухня-вітальня 12,08 м з панорамним вікном.
Простора спальня 11
Вид во двор! Низкая цена‼️ В наличии‼️
Этаж 5 (25). Секция 6.
Общая площадь 34,47 м².
Состояние квартиры-от строителей.
Вид во двор, западная сторона
Большая кухня-гостинная 12,08 м² с панорамным окном.
Просторная спальня 11,21 м² с панорамными окнами.
Санузел, гардеробная.
Бронированная дверь.
Окна и балконные двери: 5-ти камерный ламинированный
металлопластиковый профиль. 2-х камерные энергосберегающие
стеклопакеты
В каждой квартире устанавлен теплосчетчик
Уникальные террасы на крыше с ландшафтным дизайном и панорамным видом на море!
Закрытая охраняемая территория с видеонаблюдением
В каждой секции предусматривается 4 лифта.
Подземный двухуровневый паркинг
Детский центр, бассейн, фитнес-клуб, SPA, магазины, кафе, эко-маркет, отделение банка и почты - всё это планируется на территории комплекса!
До Аркадии и лучших пляжей с клубами (Ибица, Итака, Red Line)– всего 5 минут пешком
В пешей доступности Парк Победы и Трасса Здоровья
Рядом супермаркеты, ТРЦ Гагарин Плаза и Ля Сильпо, рестораны, аптеки, салоны красоты, кинотеатр и тд.
Продажа по переуступке (переуступку оплачивает продавец)
Видео по запросу.
Продам чудову однокімнатну квартиру в новому ЖК Атмосфера в Аркадії! До моря 5 хвилин пішки!
Вигляд у двір! Низька ціна‼️ В наявності‼️
Поверх 5(25). Секція 6
Загальна площа 34,47 м ².
Стан квартири від будівельників.
Вид у двір, західна сторона
Велика кухня-вітальня 12,08 м з панорамним вікном.
Простора спальня 11
Характеристики
-
Кількість кімнат1 кімната
-
Тип кімнатроздільні
-
Загальна площа35 м²
-
Житлова площа11 м²
-
Площа кухні12 м²
-
Тип будинкумонолітний
-
Тип будівліЗданий в експлуатацію
-
Поверх5
-
Поверховість будинку25
-
Расположение в домев середине дома
-
Плануванняіндивідуальне
-
Санвузолсуміщений
-
Паркуванняпідземне
-
Стан квартирипотребує капітального ремонту
-
Отоплениеавтономное на дом
Расположение
-
ВулицяКурортный перулок
-
Номер будинку2
-
РайонАркадия
Ціна:54 000 $
- Одеса
- +380637 357100