Продается 1-комнатная квартира в престижном центре Киевского района ..

41 000 $
Одеса 6 Березня 2026, 05:00 Переглядів: 27
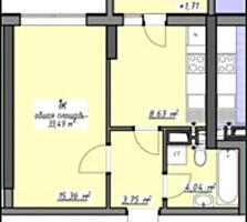
Продается 1-комнатная квартира в престижном центре Киевского района Таирова. Общая площадь 33,3 кв.м, удобен 3-й этаж современной 17-этажки.В квартире ремонт от застройщика. Квартира не меблирована. Вид из окна в школу. Есть генератор на лифтах, подземный паркинг.Развитая транспортная развязка обеспечивает легкий доступ ко всем районам города, к морю 30-40 минут пешком или быстро на маршрутке. Рядом школы, сады, поликлиники, супермаркеты, рынки, вся область услуг.Посредникам, просьба не беспокоить.ID объекта: 215577
  • Объявление от
    компании

Характеристики

  • Кількість кімнат
    1 кімната
  • Загальна площа
    33.3 м²
  • Житлова площа
    20 м²
  • Площа кухні
    8.5 м²
  • Поверх
    3
  • Поверховість будинку
    17

Расположение

    • Район
      Киевский
Ціна:41 000 $
Ціна згідно з курсом
    Поделитесь объявлением с друзьями
    • Одеса
    • +380631 886750

    Схожі пропозиції

    показать ещё
    Загрузка...