Київ
Тирасполь
2 Квітня 2026, 15:06
Переглядів: 1074
- stralena
- Оголошень на сайті: 14
- Переглянути всі оголошення автора
- Подписаться на автора
Продаются 2-комнатные квартиры на Балке в новом 5 ти этажном доме, который расположен по ул. Юности.
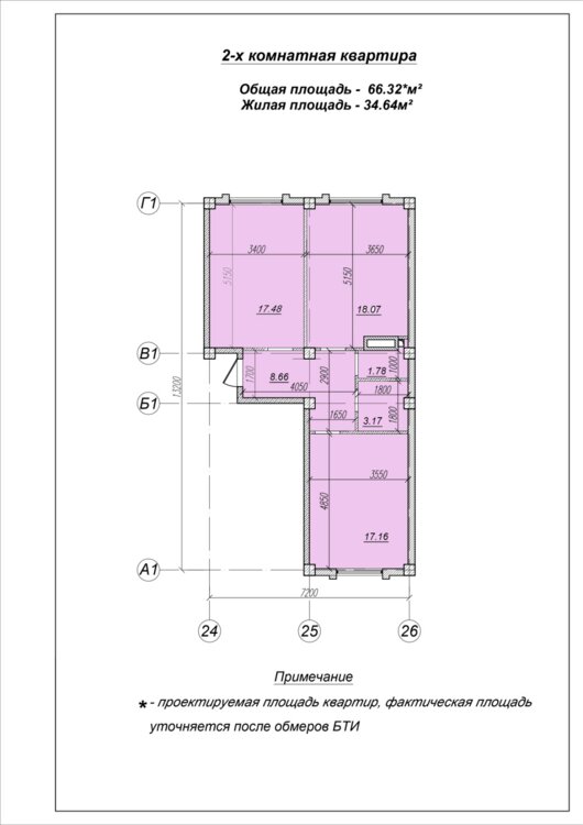
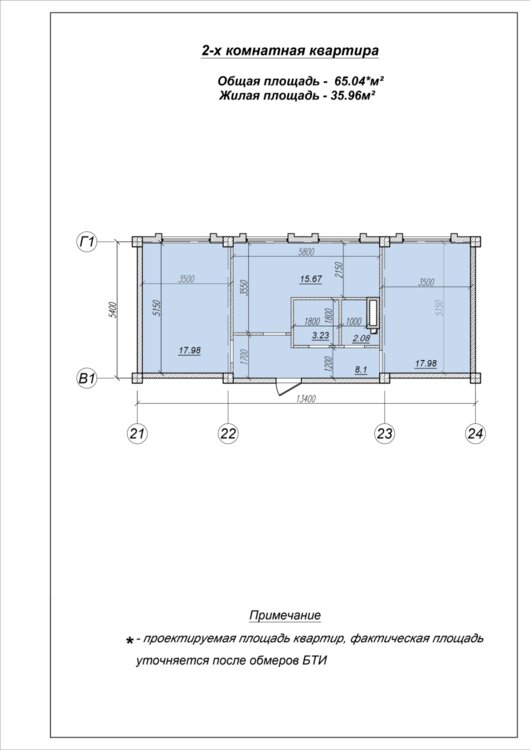
Квартиры площадью - 65 м. кв. -40000 и 66,30 м. кв. -40500 у. е.
Дом кирпичный, утепленный пенопластом 5 см. и декоративной штукатуркой, крыша шатровая. есть полноценный чердак. На этаже 5 квартир в большом тамбуре с отсекающей дверью.
В квартирах установлены: входная дверь, стеклопакеты, на полу - стяжка, внутренние перегородки - фортан, санузел раздельный. В квартире 65 квадратов кухня почти 16 с 2мя окнами, буквой Г, которую можно обыграть в современном стиле (рабочую зону расположить у окна и у другого окна столовую зону).
Заведены точки подключения - свет, газ, вода. Предусмотрено автономное отопление.
дата сдачи объекта в эксплуатацию 3 квартал 2026 года.
Во дворе предусмотрены парковочные карманы для автотранспорта, детская и спортивная площадки.
Отличная инфраструктура, в шаговой доступности 12 школа, детские сады, торговый центр, парк, остановки автотранспорта.
Квартиры площадью - 65 м. кв. -40000 и 66,30 м. кв. -40500 у. е.
Дом кирпичный, утепленный пенопластом 5 см. и декоративной штукатуркой, крыша шатровая. есть полноценный чердак. На этаже 5 квартир в большом тамбуре с отсекающей дверью.
В квартирах установлены: входная дверь, стеклопакеты, на полу - стяжка, внутренние перегородки - фортан, санузел раздельный. В квартире 65 квадратов кухня почти 16 с 2мя окнами, буквой Г, которую можно обыграть в современном стиле (рабочую зону расположить у окна и у другого окна столовую зону).
Заведены точки подключения - свет, газ, вода. Предусмотрено автономное отопление.
дата сдачи объекта в эксплуатацию 3 квартал 2026 года.
Во дворе предусмотрены парковочные карманы для автотранспорта, детская и спортивная площадки.
Отличная инфраструктура, в шаговой доступности 12 школа, детские сады, торговый центр, парк, остановки автотранспорта.
Характеристики
-
Кількість кімнат2 кімнати
-
Тип кімнатроздільні
-
Загальна площа65 м²
-
Житлова площа36 м²
-
Площа кухні15.7 м²
-
Тип будинкупанельний
-
Тип будівліНе зданий в експлуатацію
-
Поверх2
-
Поверховість будинку5
-
Расположение в домев середине дома
-
Плануванняіндивідуальне
-
Санвузолроздільний
-
Паркуваннявідкрите
-
Стан квартирипотребує капітального ремонту
-
Отоплениеавтономное на квартиру
Додатково
-
Поруч із будинкомзупинка, магазин, аптека, дитячий садок, школа, парк
-
склопакет✔
-
домофон✔
Расположение
-
ВулицяЮности
-
РайонОктябрьский (Балка)
-
Ипотека✔
Ціна:40 000 $
- Тирасполь
- +37377 760572