Продам квартиру 60 кв. м., 23/24, новый дом, жк 61-я Жемчужина.

67 500 $
Одеса 23 Лютого 2026, 13:31 Переглядів: 443
Продам квартиру 60 кв. м., 23/24, новый дом, жк 61-я Жемчужина. Продам квартиру 60 кв. м., 23/24, новый дом, жк 61-я Жемчужина. Продам квартиру 60 кв. м., 23/24, новый дом, жк 61-я Жемчужина. Продам квартиру 60 кв. м., 23/24, новый дом, жк 61-я Жемчужина. Продам квартиру 60 кв. м., 23/24, новый дом, жк 61-я Жемчужина. Продам квартиру 60 кв. м., 23/24, новый дом, жк 61-я Жемчужина. Продам квартиру 60 кв. м., 23/24, новый дом, жк 61-я Жемчужина.
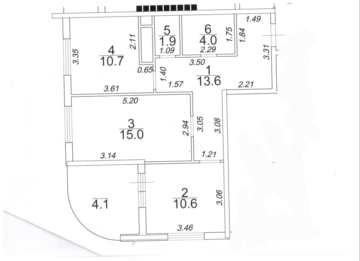
Продам 2 комнатную квартиру в новом доме в жк 61-я Жемчужина, ул. Краснова, 23/24, общая площадь 60 кв. м. Состояние от строителей. Полная автономия. Есть балкон. Окна выходят на город, фонтаны, площадки. Закрытая придомовая территория. Переуступка. Цена 67500 у. е. Марина риэлтор 0734113720

Характеристики

  • Кількість кімнат
    2 кімнати
  • Тип кімнат
    роздільні
  • Загальна площа
    60 м²
  • Тип будинку
    монолітний
  • Тип будівлі
    Зданий в експлуатацію
  • Поверх
    23
  • Поверховість будинку
    24
  • Санвузол
    суміщений
  • Балкон/лоджія
    1
  • Паркування
    підземне
  • Стан квартири
    потребує капітального ремонту
  • Отопление
    автономное на дом

Расположение

  • Вулиця
    Краснова
    • Район
      Малиновский
Ціна:67 500 $
Ціна згідно з курсом
    Поделитесь объявлением с друзьями
    • Одеса
    • +380734113720

    Схожі пропозиції

    показать ещё
    Загрузка...