Объявление больше не публикуется на сайте
‼️Аркадия‼️Атмосфера‼️Море‼️Новый ремонт‼️Рядом Генуэзская‼️Панорама
80 000 $
Одеса
26 Жовтня 2025, 20:58
Переглядів: 126
Продается однокомнатная квартира с новым ремонтом в ЖК Атмосфера в Аркадии! Море - 5 минут пешком️
Этаж 24 (25).
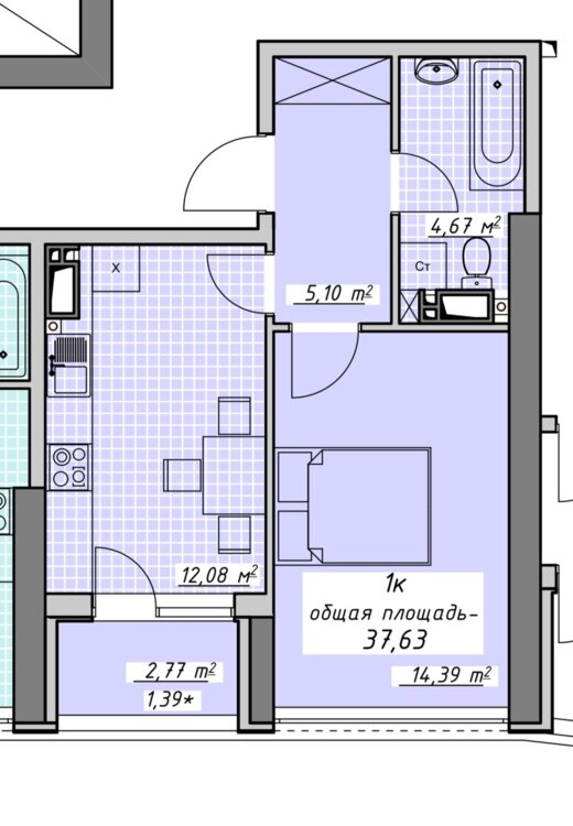
Общая площадь 37,63м², кухня 12,08 м²
Качественный новый ремонт, никто не жил. Балкон.
Квартира полностью оборудована мебелью и техникой.
Кухня-гостиная с обеденной зоной и зоной отдыха (диван, ТВ)
Просторная спальня с панорамными окнами.
Большой санузел, Гардероб.
Бронированная дверь
Окна и балконные двери: 5-ти камерный ламинированный
металлопластиковый профиль. 2-х камерные энергосберегающие
стеклопакеты
В каждой квартире установлен теплосчетчик
Уникальные террасы на крыше с ландшафтным дизайном и панорамным видом на море!
Закрытая охраняемая территория с видеонаблюдением
В каждой секции предусматривается 4 лифта.
Подземный двухуровневый паркинг
Детский центр, бассейн, фитнес-клуб, SPA, магазины, кафе, эко-маркет, отделение банка и почты – всё это планируется на территории комплекса!
До Аркадии и лучших пляжей с клубами (Ибица, Итака, Red Line)– всего 5 минут пешком
В пешей доступности Парк Победы и Трасса Здоровья
Рядом супермаркеты, ТРЦ Гагарин Плаза и Ля Сильпо, рестораны, аптеки, салоны красоты, кинотеатр и тд.
Продажа по переуступке, переуступку оплачивает продавец.
Продається однокімнатна квартира з новим ремонтом в ЖК Атмосфера в Аркадії! Більше - 5 хвилин пішки️
Этаж 24 (25).
Загальна площа 37,63м², кухня 12,08м²
Качественный новый ремонт, никто не жил. Балкон.
Квартира повністю обладнана меблями та технікою.
Кухня-гостина з обідньою зоною і зоною відпочинку (диван,
Этаж 24 (25).
Общая площадь 37,63м², кухня 12,08 м²
Качественный новый ремонт, никто не жил. Балкон.
Квартира полностью оборудована мебелью и техникой.
Кухня-гостиная с обеденной зоной и зоной отдыха (диван, ТВ)
Просторная спальня с панорамными окнами.
Большой санузел, Гардероб.
Бронированная дверь
Окна и балконные двери: 5-ти камерный ламинированный
металлопластиковый профиль. 2-х камерные энергосберегающие
стеклопакеты
В каждой квартире установлен теплосчетчик
Уникальные террасы на крыше с ландшафтным дизайном и панорамным видом на море!
Закрытая охраняемая территория с видеонаблюдением
В каждой секции предусматривается 4 лифта.
Подземный двухуровневый паркинг
Детский центр, бассейн, фитнес-клуб, SPA, магазины, кафе, эко-маркет, отделение банка и почты – всё это планируется на территории комплекса!
До Аркадии и лучших пляжей с клубами (Ибица, Итака, Red Line)– всего 5 минут пешком
В пешей доступности Парк Победы и Трасса Здоровья
Рядом супермаркеты, ТРЦ Гагарин Плаза и Ля Сильпо, рестораны, аптеки, салоны красоты, кинотеатр и тд.
Продажа по переуступке, переуступку оплачивает продавец.
Продається однокімнатна квартира з новим ремонтом в ЖК Атмосфера в Аркадії! Більше - 5 хвилин пішки️
Этаж 24 (25).
Загальна площа 37,63м², кухня 12,08м²
Качественный новый ремонт, никто не жил. Балкон.
Квартира повністю обладнана меблями та технікою.
Кухня-гостина з обідньою зоною і зоною відпочинку (диван,
Характеристики
-
Кількість кімнат1 кімната
-
Тип кімнатроздільні
-
Загальна площа38 м²
-
Площа кухні14 м²
-
Тип будинкумонолітний
-
Тип будівліЗданий в експлуатацію
-
Поверх24
-
Поверховість будинку25
-
Расположение в домев середине дома
-
Плануванняіндивідуальне
-
Санвузолсуміщений
-
Балкон/лоджія1
-
Паркуванняпідземне
-
Стан квартириєвроремонт
-
Отоплениеавтономное на дом
Расположение
-
ВулицяКурортный перулок
-
Номер будинку2/2
-
РайонАркадия
Ціна:80 000 $
- Одеса