Київ
24 Жовтня 2025, 03:45
Переглядів: 169
- user1775435
- Оголошень на сайті: 15
- Переглянути всі оголошення автора
- Подписаться на автора
Продаж 2-к квартири ЖК Причал-8,
по вул. Гліба Бабича (Канальна), 8Б розташований на Лівому березі
у Дарницькому р-ні, масив Позняки..
Будинок - 2021року, монол. карк. з паркінгом.
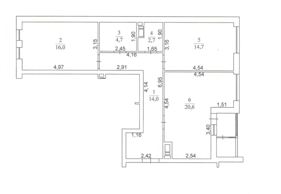
ЗАГАЛЬНА - 75.6кв. м.
Дві окремі кімнати -16кв. м. +14.7кв. м.
Коридор - 14кв. м.
Кухня - 20.6кв. м.
Лоджия - (k-1) -2.0 кв. м.
Два санвузли - 4.7кв. м. + 2.7кв. м.
Квартира БЕЗ оздоблення
- металопластикові 5-камерні вікна,
- утеплення мінеральна вата,
- резервне живлення /генератор/,
- індивідуальні лічильники на тепло, воду...
- підземний паркінг є як Укриття,
- територія, закрита для авто та сторонніх
- цілодобова служба охорони, камери відеонагляду.
Зручне розташування ЖК в оточенні озера Корольок,
- 10хв на громадському транспорті
до ст. м. Позняки, Осокорки, Лівобережна.
- піша доступність до міської електрички Лівий
Берег,
- 15хв. на власному автомобілі до центру міста.
В близькій доступності від будинку - ТЦ, школа, дитячий садок, супермаркет та ін...
БУДИНОК ВВЕДЕНО в експлуатацію,
Квартира з документами, Перегляд по домовленості.
Телефонуйте у будь який час.
по вул. Гліба Бабича (Канальна), 8Б розташований на Лівому березі
у Дарницькому р-ні, масив Позняки..
Будинок - 2021року, монол. карк. з паркінгом.
ЗАГАЛЬНА - 75.6кв. м.
Дві окремі кімнати -16кв. м. +14.7кв. м.
Коридор - 14кв. м.
Кухня - 20.6кв. м.
Лоджия - (k-1) -2.0 кв. м.
Два санвузли - 4.7кв. м. + 2.7кв. м.
Квартира БЕЗ оздоблення
- металопластикові 5-камерні вікна,
- утеплення мінеральна вата,
- резервне живлення /генератор/,
- індивідуальні лічильники на тепло, воду...
- підземний паркінг є як Укриття,
- територія, закрита для авто та сторонніх
- цілодобова служба охорони, камери відеонагляду.
Зручне розташування ЖК в оточенні озера Корольок,
- 10хв на громадському транспорті
до ст. м. Позняки, Осокорки, Лівобережна.
- піша доступність до міської електрички Лівий
Берег,
- 15хв. на власному автомобілі до центру міста.
В близькій доступності від будинку - ТЦ, школа, дитячий садок, супермаркет та ін...
БУДИНОК ВВЕДЕНО в експлуатацію,
Квартира з документами, Перегляд по домовленості.
Телефонуйте у будь який час.
Характеристики
-
Кількість кімнат2 кімнати
-
Тип кімнатроздільні
-
Загальна площа75.6 м²
-
Житлова площа31 м²
-
Площа кухні20.6 м²
-
Тип будинкумонолітний
-
Тип будівліЗданий в експлуатацію
-
Поверх8
-
Поверховість будинку20
-
Плануванняіндивідуальне
-
Санвузол2 і більше
-
Балкон/лоджія1
-
Паркуванняпідземне
-
Стан квартирипотребує капітального ремонту
-
Отоплениецентральное
Расположение
-
Вулицявул. Гліба Бабича (Канальна)
-
Номер будинку8Б
-
МетроКиїв
-
СтанціяЛівобережна
-
РайонДарницький
Ціна:84 000 $
- Київ
- +380633568985