Одеса
Тирасполь
2 Квітня 2026, 20:53
Переглядів: 849
- serg733899
- Оголошень на сайті: 14
- Переглянути всі оголошення автора
- Подписаться на автора
Трехкомнатная квартира в тихом, спальном районе. До набережной р. Днестр примерно 400 м. До Супермаркет "Шериф", остановки общ. транспорта в пешей доступности (5 минут прогулочным шагом).
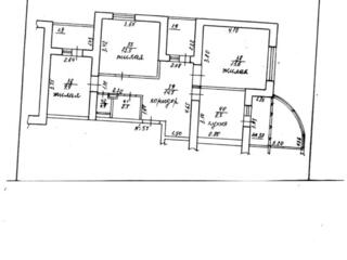
Квартира имеет уникальную планировку. Большая прихожая и тамбур на две квартиры. С кухни выход на лоджию 9 кв. м. Можно соединить или вынести кухню на лоджию или организовать столовую. Кроме этой лоджии есть еще две, одну из которой можно использовать под сушилку. Ванна, туалет, кухня после кап. ремонта. Коридор в сером варианте, готов под поклейку обоев или нанесению декор. отделки. Квартира находится на первом этаже, но над цокольным этажом, т. е. высоко от уровня земли.
Квартира требует вложений, но имеет большой потенциал для обустройства ее по своему вкусу. Возможен торг. Так же возможен обмен на современный, каменный дом: Карагаш, Слободзея, Чобручи. Рассмотрю варианты.
Квартира имеет уникальную планировку. Большая прихожая и тамбур на две квартиры. С кухни выход на лоджию 9 кв. м. Можно соединить или вынести кухню на лоджию или организовать столовую. Кроме этой лоджии есть еще две, одну из которой можно использовать под сушилку. Ванна, туалет, кухня после кап. ремонта. Коридор в сером варианте, готов под поклейку обоев или нанесению декор. отделки. Квартира находится на первом этаже, но над цокольным этажом, т. е. высоко от уровня земли.
Квартира требует вложений, но имеет большой потенциал для обустройства ее по своему вкусу. Возможен торг. Так же возможен обмен на современный, каменный дом: Карагаш, Слободзея, Чобручи. Рассмотрю варианты.
Характеристики
-
Кількість кімнат3 кімнати
-
Тип кімнатроздільні
-
Загальна площа72 м²
-
Житлова площа38 м²
-
Площа кухні8.7 м²
-
Тип будинкублоковий
-
Тип будівліТипова забудова
-
Поверх1
-
Поверховість будинку5
-
Расположение в домеугловая
-
Плануванняіндивідуальне
-
Санвузолроздільний
-
Балкон/лоджія3
-
Паркуваннявідкрите
-
Стан квартирипотребує косметичного ремонту
-
Отоплениецентральное
Додатково
-
Поруч із будинкомзупинка, магазин, супермаркет, аптека, поліклініка, дитячий садок
-
кондиціонер✔
-
броньовані двері✔
-
домофон✔
-
интернет✔
-
ТБ кабель✔
-
сміттєпровід✔
Расположение
-
Вулиця1-го Мая
-
РайонЦентр
Ціна:60 000 $
- Тирасполь
- +37377 770132