Украина
Тирасполь
30 Січня 2026, 15:11
Переглядів: 2369
- marya.groznaya
- Оголошень на сайті: 41
- Переглянути всі оголошення автора
- Подписаться на автора
Продается шикарная однокомнатная квартира на Балке.
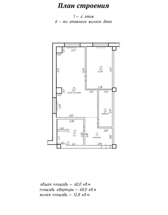
Общая площадь - 60 кв. м.
Одна спальня - 13 кв. м. с ливингом и открытой кухней-столовой - 26 кв. м.
Автономное отопление и теплый пол по всей квартире (кроме гардеробной зоны) - двухконтурный газовый котел.
Новая медная электрическая проводка, автоматы.
Счетчики на все.
Сделан вывод под кондиционер.
Качественные входная и межкомнатные двери.
Керамогранит 60*120.
В комнате и гардеробной - ламинат 33 класс.
В санузле установлена инсталляция, душевая с трапом и системой скрытого монтажа, умывальник выполнен индивидуально, есть также выводы под ванную (площадь позволяет установить - 8 кв. м. ).
В прихожей установлено декоративное зеркальное панно, красивейшие люстры.
Имеется обеденный стол и стулья.
Квартира утеплена полностью снаружи, заменены коммуникации в подвале, произведена шумоизоляция.
В подвале дома имеется также подсобное помещение для хранения.
Ремонт выполнен очень достойно и качественно, из дорогих материалов.
Остается установить кухонный гарнитур и мебель на ваш вкус.
Идеальная квартира для ценителей качества и роскоши.
Приглашаем Вас на просмотр и обсуждение предложений.
Имеется видеообзор. Ждем во всех мессенджерах и на нашей странице в инстаграм https://www.instagram.com/globus.tiraspol?igsh=MXRucGF0bHgzOHYzag==
Общая площадь - 60 кв. м.
Одна спальня - 13 кв. м. с ливингом и открытой кухней-столовой - 26 кв. м.
Автономное отопление и теплый пол по всей квартире (кроме гардеробной зоны) - двухконтурный газовый котел.
Новая медная электрическая проводка, автоматы.
Счетчики на все.
Сделан вывод под кондиционер.
Качественные входная и межкомнатные двери.
Керамогранит 60*120.
В комнате и гардеробной - ламинат 33 класс.
В санузле установлена инсталляция, душевая с трапом и системой скрытого монтажа, умывальник выполнен индивидуально, есть также выводы под ванную (площадь позволяет установить - 8 кв. м. ).
В прихожей установлено декоративное зеркальное панно, красивейшие люстры.
Имеется обеденный стол и стулья.
Квартира утеплена полностью снаружи, заменены коммуникации в подвале, произведена шумоизоляция.
В подвале дома имеется также подсобное помещение для хранения.
Ремонт выполнен очень достойно и качественно, из дорогих материалов.
Остается установить кухонный гарнитур и мебель на ваш вкус.
Идеальная квартира для ценителей качества и роскоши.
Приглашаем Вас на просмотр и обсуждение предложений.
Имеется видеообзор. Ждем во всех мессенджерах и на нашей странице в инстаграм https://www.instagram.com/globus.tiraspol?igsh=MXRucGF0bHgzOHYzag==
Характеристики
-
Кількість кімнат1 кімната
-
Тип кімнатроздільні
-
Загальна площа60 м²
-
Житлова площа13 м²
-
Площа кухні26.3 м²
-
Тип будинкукотельцовий
-
Тип будівліЗданий в експлуатацію
-
Поверх1
-
Поверховість будинку6
-
Плануванняіндивідуальне
-
Санвузолсуміщений
-
Паркуваннявідкрите
-
Стан квартириєвроремонт
-
Отоплениеавтономное на квартиру
Додатково
-
Поруч із будинкомзупинка, магазин, супермаркет, ринок, аптека, поліклініка, дитячий садок, школа
-
меблі✔
-
склопакет✔
-
тепла підлога✔
-
кондиціонер✔
-
броньовані двері✔
Расположение
-
ВулицяКомсомольская
-
РайонОктябрьский (Балка)
- Тирасполь
- +37377 859631