Київ
31 Жовтня 2025, 06:30
Переглядів: 512
- aspo.biz
- Оголошень на сайті: 1029
- Переглянути всі оголошення автора
- Подписаться на автора
Контакти для зв’язку: 0503681792 Анатолій. Пропонуємо Вашій увазі двокімнатну квартиру у Жк Багговутівський.
Татарка історична місцевість столиці, яка розташована у Шевченківському районі
вул. Загорівська,25
Сучасний будинок класу Комфорт.
Монолітно-каркасний. Стіни - цегла.
Двадцять чотири поверха
Атрибути бізнес-класу у будинку:
Власна котельня. В квартирі встановлені та підключені радіатори. Лічильник на тепло (лічильники на воду та електрику зрозуміло також).
Підземний паркінг.
Сучасні швидкісні ліфти. Спускаются прямо у паркінг.
Чипований доступ до підїзду, до ліфту, та до паркінгу.
Вхідні двері у квартиру протиударні та вогнетривкі, оскільки виконані з якісного металу. Можна не міняти.
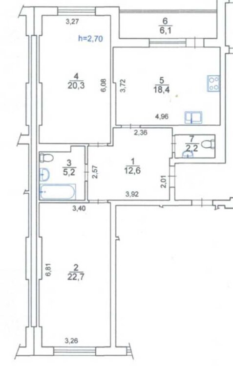
Велика двокімнатна квартира. Після будівельників. У цієї двокімнатної квартирі сама велика загальна площа, відповідно і площа кухні, серед двокімнатних квартир у Жк Багговутівський.
21 поверх.
Загальна площа. 87,5 м2. Житлова 43 м2. Площа кухні 18,4 м2.
Планування. Вікна виходять на дві протилежні сторони.
Вікно однієї з двох житлових кімнат - панорамне.
З кухні вихід на велику лоджію - 6,1 м2.
Два санвузли.
Зверніть увагу на розташування отворів міжкімнатних дверей. Вони дозволяють планувати цікаві рішення по меблюванню квартири.
Панорама. Для тих хто цінує. З вікна можно побачити куполи Андріївської церкви на Андріївському узвозі
На поверсі є єдина кладова. 3,6 м2 Вона у власности. Продаж розглянемо окремо.
Потрібно паркомісце? Є у власності. Питання розглянемо окремо.
.
Інфрас
Татарка історична місцевість столиці, яка розташована у Шевченківському районі
вул. Загорівська,25
Сучасний будинок класу Комфорт.
Монолітно-каркасний. Стіни - цегла.
Двадцять чотири поверха
Атрибути бізнес-класу у будинку:
Власна котельня. В квартирі встановлені та підключені радіатори. Лічильник на тепло (лічильники на воду та електрику зрозуміло також).
Підземний паркінг.
Сучасні швидкісні ліфти. Спускаются прямо у паркінг.
Чипований доступ до підїзду, до ліфту, та до паркінгу.
Вхідні двері у квартиру протиударні та вогнетривкі, оскільки виконані з якісного металу. Можна не міняти.
Велика двокімнатна квартира. Після будівельників. У цієї двокімнатної квартирі сама велика загальна площа, відповідно і площа кухні, серед двокімнатних квартир у Жк Багговутівський.
21 поверх.
Загальна площа. 87,5 м2. Житлова 43 м2. Площа кухні 18,4 м2.
Планування. Вікна виходять на дві протилежні сторони.
Вікно однієї з двох житлових кімнат - панорамне.
З кухні вихід на велику лоджію - 6,1 м2.
Два санвузли.
Зверніть увагу на розташування отворів міжкімнатних дверей. Вони дозволяють планувати цікаві рішення по меблюванню квартири.
Панорама. Для тих хто цінує. З вікна можно побачити куполи Андріївської церкви на Андріївському узвозі
На поверсі є єдина кладова. 3,6 м2 Вона у власности. Продаж розглянемо окремо.
Потрібно паркомісце? Є у власності. Питання розглянемо окремо.
.
Інфрас
-
Объявление откомпании
Характеристики
-
Кількість кімнат2 кімнати
-
Загальна площа87.5 м²
-
Житлова площа43 м²
-
Площа кухні18.4 м²
-
Тип будинкуцегляний
-
Поверх21
-
Поверховість будинку24
-
Стан квартирипотребує капітального ремонту
Ціна:95 000 $
- Київ
- +380732 144941