Объявление больше не публикуется на сайте
продаж 1-к квартира Київ, Святошинський, 68900 $
68 900 $
Київ
15 Квітня 2025, 06:32
Переглядів: 535
Контакти для зв’язку: 0633610260 Сергей Кривенок. Продаж чудової однокімнатної квартири-студії з якісним ремонтом у стилі ретро-лофт.
Розташування:
м. Київ, Святошинський район, масив Святошин, вул. Львівська 11 - Жк Святобор - комплекс комфорт класу.
Найближчі станції метро Святошин 800 метрів, та ст.м. Житомирська 1100 метрів.
Про будинок:
Будинок побудований та введений в експлуатацію в 2017р. Система будівництва: монолітно-каркасна з цегляним наповненням та фасадним утепленням (100 мм базальтова вата).
В ході будівництва використовувалися сучасні енергозберігаючі технології, що забезпечують мінімальну вартість утримання житла та високий рівень комфорту.
Територія комплексу закрита від сторонніх, є охорона та консьєрж, відеоспостереження по периметру території, у дворі є дитячий майданчик, а під будинком передбачене укриття.
- в будинку установлений генератор, який в разі відключення світла заживлює систему подачі води на всі поверхи, продовжує працювати опалення і працює ліфт.
Про квартиру:
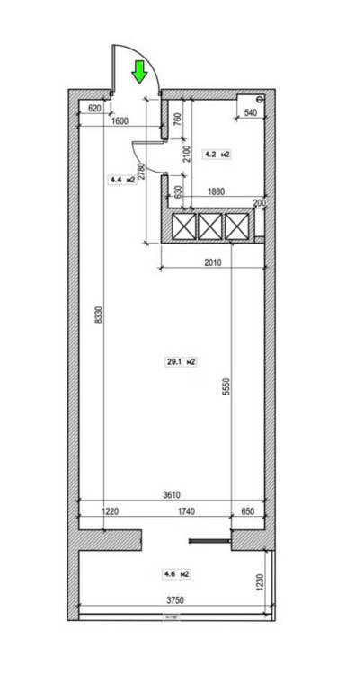
Загальна площа квартири складає 31.5 м2, кухня-студія 18 м2, зона кухні 5 м2, санвузол 3,5 м2, висота стель 2,75 м. Завдяки тому, що квартира розташована на комфортному 5/26 поверсі, то тут у Вас навіть в моменти відключення світла не буде привязки до ліфту, що неймовірно актуально в сьогоднішніх реаліях.
Квартира одностороння, не кутова, вікнами орієнтована на схід, завдяки цьому вона в першій половині дня наповнена теплим і природним світлом. В зимовий час квартира
Розташування:
м. Київ, Святошинський район, масив Святошин, вул. Львівська 11 - Жк Святобор - комплекс комфорт класу.
Найближчі станції метро Святошин 800 метрів, та ст.м. Житомирська 1100 метрів.
Про будинок:
Будинок побудований та введений в експлуатацію в 2017р. Система будівництва: монолітно-каркасна з цегляним наповненням та фасадним утепленням (100 мм базальтова вата).
В ході будівництва використовувалися сучасні енергозберігаючі технології, що забезпечують мінімальну вартість утримання житла та високий рівень комфорту.
Територія комплексу закрита від сторонніх, є охорона та консьєрж, відеоспостереження по периметру території, у дворі є дитячий майданчик, а під будинком передбачене укриття.
- в будинку установлений генератор, який в разі відключення світла заживлює систему подачі води на всі поверхи, продовжує працювати опалення і працює ліфт.
Про квартиру:
Загальна площа квартири складає 31.5 м2, кухня-студія 18 м2, зона кухні 5 м2, санвузол 3,5 м2, висота стель 2,75 м. Завдяки тому, що квартира розташована на комфортному 5/26 поверсі, то тут у Вас навіть в моменти відключення світла не буде привязки до ліфту, що неймовірно актуально в сьогоднішніх реаліях.
Квартира одностороння, не кутова, вікнами орієнтована на схід, завдяки цьому вона в першій половині дня наповнена теплим і природним світлом. В зимовий час квартира
-
Объявление откомпании
Характеристики
-
Кількість кімнат1 кімната
-
Загальна площа31 м²
-
Житлова площа18 м²
-
Площа кухні5 м²
-
Тип будинкуцегляний
-
Поверх5
-
Поверховість будинку26
-
Стан квартириєвроремонт
Ціна:68 900 $
- Київ