Объявление больше не публикуется на сайте
продаж 2-к квартира Обухівський, Підгірці, 159000 $
159 000 $
Київ
29 Листопада 2023, 21:05
Переглядів: 85
Контакти для зв’язку: 0983345915 Антон. Продаж 90 кв м без %
Жк Park Lake City, це найкраще поєднання смаку та якості. Містечко, яке розвивається незважаючи ні на які зовнішні труднощі. Своє озеро, пляж, майданчики для активного та пасивного відпочинку, генератори, вода зі свердловини.
А в планах свій садок і школа, кількість будинків планомірно виросте у тричі!
Отже про переваги саме цієї квартири:
1. Видова, 4-й поверх.
2. Двостороння. Є різні варіанти перепланування. Наприклад з неї можна зробити 2(Дві!!) квартири, тому що вона від входу має приблизно однакові за площею частини в різні боки і на обох сторонах є балкони. Або можна зробити з однієї кімнати дві. В обох випадках площа це дозволяє. Вигляд з вікна з одного боку Прямо на пляж і озеро, на відміну від кутових квартир, в яких балкон трохи більший, Але!! вигляд з вікна на озеро боковий, а прямо перед очимавікна квартири сусіднього будинку, що не дуже комфортно. Тут вікна в простір: одна сторона прямо на озеро і пляж, друга в простір, в сторону шосе. Від шосе достатня відстань, не шумно навіть з відкритими вікнами.
А ще може бути торг. Торг може бути суттєвий або не дуже, залежить від серйозності ваших намірів.
Форма пропозиції: від рієлтора, але комісійні ви Не сплачуєте.
Порядок продажу: переуступка майнових прав, але цю статтю витрат ви теж Не сплачуєте. Оплачуєте лише свій стандартний 1 відсоток в пенсійний фонд.
Ціна: 159 тисяч доларів Сша. Або 1767 доларів за 1 кв м. Можливий торг.
Пропоную приїздити
Жк Park Lake City, це найкраще поєднання смаку та якості. Містечко, яке розвивається незважаючи ні на які зовнішні труднощі. Своє озеро, пляж, майданчики для активного та пасивного відпочинку, генератори, вода зі свердловини.
А в планах свій садок і школа, кількість будинків планомірно виросте у тричі!
Отже про переваги саме цієї квартири:
1. Видова, 4-й поверх.
2. Двостороння. Є різні варіанти перепланування. Наприклад з неї можна зробити 2(Дві!!) квартири, тому що вона від входу має приблизно однакові за площею частини в різні боки і на обох сторонах є балкони. Або можна зробити з однієї кімнати дві. В обох випадках площа це дозволяє. Вигляд з вікна з одного боку Прямо на пляж і озеро, на відміну від кутових квартир, в яких балкон трохи більший, Але!! вигляд з вікна на озеро боковий, а прямо перед очимавікна квартири сусіднього будинку, що не дуже комфортно. Тут вікна в простір: одна сторона прямо на озеро і пляж, друга в простір, в сторону шосе. Від шосе достатня відстань, не шумно навіть з відкритими вікнами.
А ще може бути торг. Торг може бути суттєвий або не дуже, залежить від серйозності ваших намірів.
Форма пропозиції: від рієлтора, але комісійні ви Не сплачуєте.
Порядок продажу: переуступка майнових прав, але цю статтю витрат ви теж Не сплачуєте. Оплачуєте лише свій стандартний 1 відсоток в пенсійний фонд.
Ціна: 159 тисяч доларів Сша. Або 1767 доларів за 1 кв м. Можливий торг.
Пропоную приїздити
-
Объявление откомпании
Характеристики
-
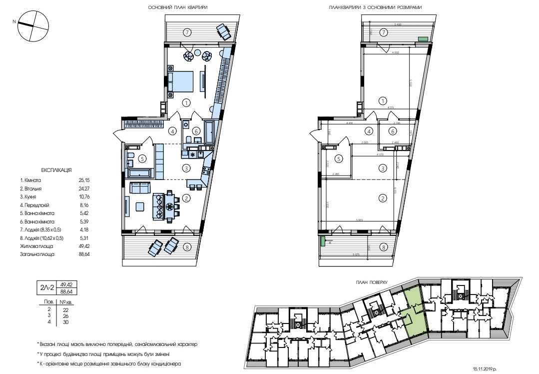
Кількість кімнат2 кімнати
-
Загальна площа90 м²
-
Житлова площа50 м²
-
Площа кухні20 м²
-
Тип будинкуцегляний
-
Тип будівліЗданий в експлуатацію
-
Поверх4
-
Поверховість будинку4
-
Стан квартирипотребує капітального ремонту
Ціна:159 000 $
- Київ