Київ
20 Вересня 2025, 06:31
Переглядів: 159
- aspo.biz
- Оголошень на сайті: 1029
- Переглянути всі оголошення автора
- Подписаться на автора
Контакти для зв’язку: 0973993126 Леся. Є Генератор та УКРИТТЯ!
На території Нова Пошта та Епіцентр.
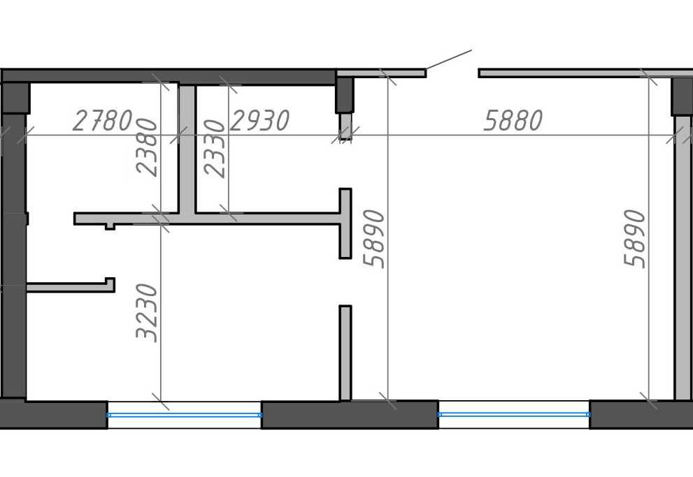
Оренда Технічного Приміщення, Складу- 70м2 на цокольному поверсі в Бц Армарис.
УНІКАЛЬНА Локація: 2 хвилини до метро, 20 хвилин на авто до центру міста, зручна транспортна розвязка.
ІНФРАСТРУКТУРА Бізнес Центру: Нова Пошта, Епіцентр, КредоБанк, клініка MyDerm, кондитерська Maya Cake, кімнати для переговорів та тренінгів, можливість зняти окреме робоче місце , smart-офіси, невеликі складські приміщення, кафе, фітнес- зал , спорт зони, салон краси та багато іншого.
ЗОВНІШНЯ Інфраструктура: McDonalds. Novus, Євразія, Пузата Хата, банки, нотаріуси, кафе, ресторани, піцерії, магазини, ринок, аптеки.
СЕРВІС-УПРАВЛІННЯ: безперебійне енерго- і водопостачання ( Підключений Потужний Генератор на весь Бізнес Центр) , інтернет- провайдери на вибір, паркомісця під охороною та відеонаглядом , клінінг, технічне обслуговування, цілодобовий пост охорони, системи контроля доступу , юридичні адреси з адмініструванням.
Додатково оплачуються комунальні та експлуатаційні послуги. Без Пдв.
Леся код:39e67e53
На території Нова Пошта та Епіцентр.
Оренда Технічного Приміщення, Складу- 70м2 на цокольному поверсі в Бц Армарис.
УНІКАЛЬНА Локація: 2 хвилини до метро, 20 хвилин на авто до центру міста, зручна транспортна розвязка.
ІНФРАСТРУКТУРА Бізнес Центру: Нова Пошта, Епіцентр, КредоБанк, клініка MyDerm, кондитерська Maya Cake, кімнати для переговорів та тренінгів, можливість зняти окреме робоче місце , smart-офіси, невеликі складські приміщення, кафе, фітнес- зал , спорт зони, салон краси та багато іншого.
ЗОВНІШНЯ Інфраструктура: McDonalds. Novus, Євразія, Пузата Хата, банки, нотаріуси, кафе, ресторани, піцерії, магазини, ринок, аптеки.
СЕРВІС-УПРАВЛІННЯ: безперебійне енерго- і водопостачання ( Підключений Потужний Генератор на весь Бізнес Центр) , інтернет- провайдери на вибір, паркомісця під охороною та відеонаглядом , клінінг, технічне обслуговування, цілодобовий пост охорони, системи контроля доступу , юридичні адреси з адмініструванням.
Додатково оплачуються комунальні та експлуатаційні послуги. Без Пдв.
Леся код:39e67e53
-
Объявление откомпании
Характеристики
-
Тип нерухомостіСклад
-
Загальна площа70
Ціна:12 600 грн
- Київ
- +380732 144941