Украина
Белая Церковь
5 Березня 2026, 04:15
Переглядів: 420
- imperiya_bc
- Оголошень на сайті: 68
- Переглянути всі оголошення автора
- Подписаться на автора
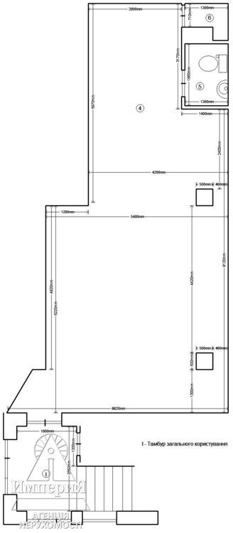
Аренда торгового помещения в Центре города по улице Ярмарочная возле центрального рынка. Площадь 62 квадратных метра. Первый этаж. Фасадный вход. Все централизованные коммуникации. Санузел в помещении. Модульная автономная котельная. Есть запас мощности по киловаттам. Пандус. Интенсивный поток людей, как из города, так и с района, так как рядом автовокзал. Цена: 55.000 грн. в месяц.
Агентство недвижимости "ИмпериЯ" предоставляет полный перечень услуг по вопросам связанным с недвижимостью:
-экспертная оценка недвижимости;
-услуги БТИ;
-консультация по ипотеке;
-кредит под залог недвижимости;
-купля-продажа жилой недвижимости;
-купля-продажа коммерческой недвижимости;
-аренда жилых помещений;
-аренда коммерческих объектов;
-купля-продажа земли.
Бесплатно принимаем заявки от продавцов и арендодателей. Гарантируем объективную оценку, качественную рекламную компанию и юридическую поддержку.
Юридическое сопровождение сделки до момента вручения право устанавливающих документов, проверка недвижимости на наличие арестов, отягощений, и. т. п.
Предоставляем услуги по сопровождению в изготовлении документации:
-на пристройку, перепланировку, реконструкцию и т. п.;
-на приватизацию земли, присвоение кадастрового номера;
-на перевод под нежилое, смена целевого назначения;
-на начало строительства, ввод в эксплуатацию;
-на узаконивание самовольного строительства;
-срочный выкуп недвижимого имущества.
Официально зарегистрированное предприятие с постоянным адресом, квалифицированным персоналом и опытом работы
Агентство недвижимости "ИмпериЯ" предоставляет полный перечень услуг по вопросам связанным с недвижимостью:
-экспертная оценка недвижимости;
-услуги БТИ;
-консультация по ипотеке;
-кредит под залог недвижимости;
-купля-продажа жилой недвижимости;
-купля-продажа коммерческой недвижимости;
-аренда жилых помещений;
-аренда коммерческих объектов;
-купля-продажа земли.
Бесплатно принимаем заявки от продавцов и арендодателей. Гарантируем объективную оценку, качественную рекламную компанию и юридическую поддержку.
Юридическое сопровождение сделки до момента вручения право устанавливающих документов, проверка недвижимости на наличие арестов, отягощений, и. т. п.
Предоставляем услуги по сопровождению в изготовлении документации:
-на пристройку, перепланировку, реконструкцию и т. п.;
-на приватизацию земли, присвоение кадастрового номера;
-на перевод под нежилое, смена целевого назначения;
-на начало строительства, ввод в эксплуатацию;
-на узаконивание самовольного строительства;
-срочный выкуп недвижимого имущества.
Официально зарегистрированное предприятие с постоянным адресом, квалифицированным персоналом и опытом работы
Характеристики
-
Тип нерухомостіОфіс, Торгове приміщення, Кафе / бар / ресторан, Інше
-
Загальна площа62
Расположение
-
ВулицяЯрмарочная
Ціна:55 000 грн
- Белая Церковь
- +380636 471524
- +380978 001732
- +380997 607479