Київ
12 Вересня 2025, 06:31
Переглядів: 376
- aspo.biz
- Оголошень на сайті: 1029
- Переглянути всі оголошення автора
- Подписаться на автора
Контакти для зв’язку: 0936252616 Виктор. Здається кабінет у нежитловому фонді - ідеальне рішення для роботи в центрі міста.
В оренду пропонується просторий кабінет площею 22 м, розташований за адресою вул. Григорія Сковороди, 7 лише 5 хвилин пішки від метро Контрактова площа. Приміщення знаходиться у нежитловому фонді, що відкриває широкі можливості для бізнесу.
Офісний блок розташований на безпечному цокольному поверсі міні-бізнес-центру з приємною атмосферою та відмінними сусідами у нас тихо, спокійно та по-діловому затишно. Тут працюють представники різних професій: юристи, бухгалтери, психологи, інтернет-магазини, майстри послуг та креативні фахівці.
Переваги:
Свіжий ремонт заїжджайте та починайте роботу відразу
Завжди є електроенергія та стабільний інтернет
Кондиціонер у кабінеті
Загальна охоронна сигналізація
Два входи, два санвузли
Вікна виходять у тихий двір
Можливість розміщення реклами на фасаді
У загальному користуванні холодильник та мікрохвильова піч
Комунальні включають прибирання раз на тиждень
Ідеально підійде під: офіс, масажний чи косметологічний кабінет, манікюр, юридичні та бухгалтерські послуги, консультації, інтернет-магазин та багато іншого.
Вартість - всього 10 000 грн/міс + комунальні
Без комісії для орендаря
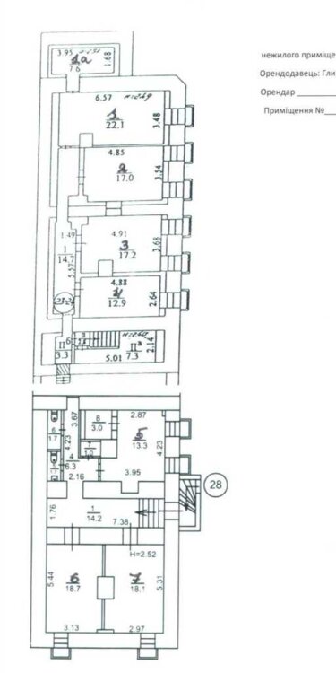
На плануванні кабінет за номером 1. код:6958d109
В оренду пропонується просторий кабінет площею 22 м, розташований за адресою вул. Григорія Сковороди, 7 лише 5 хвилин пішки від метро Контрактова площа. Приміщення знаходиться у нежитловому фонді, що відкриває широкі можливості для бізнесу.
Офісний блок розташований на безпечному цокольному поверсі міні-бізнес-центру з приємною атмосферою та відмінними сусідами у нас тихо, спокійно та по-діловому затишно. Тут працюють представники різних професій: юристи, бухгалтери, психологи, інтернет-магазини, майстри послуг та креативні фахівці.
Переваги:
Свіжий ремонт заїжджайте та починайте роботу відразу
Завжди є електроенергія та стабільний інтернет
Кондиціонер у кабінеті
Загальна охоронна сигналізація
Два входи, два санвузли
Вікна виходять у тихий двір
Можливість розміщення реклами на фасаді
У загальному користуванні холодильник та мікрохвильова піч
Комунальні включають прибирання раз на тиждень
Ідеально підійде під: офіс, масажний чи косметологічний кабінет, манікюр, юридичні та бухгалтерські послуги, консультації, інтернет-магазин та багато іншого.
Вартість - всього 10 000 грн/міс + комунальні
Без комісії для орендаря
На плануванні кабінет за номером 1. код:6958d109
-
Объявление откомпании
Характеристики
-
Тип нерухомостіОфіс
-
Загальна площа22
Ціна:10 000 грн
- Київ
- +380732 144941