Объявление больше не публикуется на сайте
довгострокова оренда офісне приміщення Київ, Шевченківський, 38900 грн
38 900 грн
Київ
1 Травня 2025, 06:32
Переглядів: 306
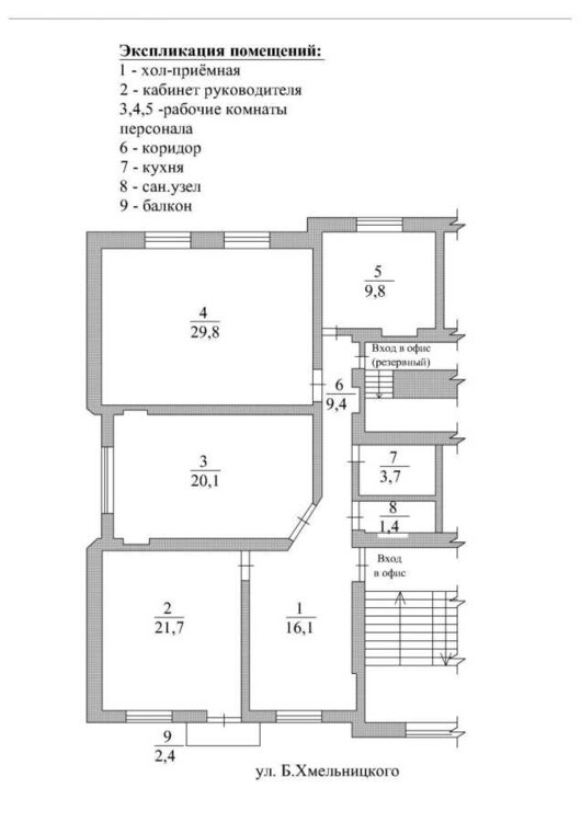
Контакти для зв’язку: 0674086816 Валентина. Євроофіс 113 кв.м по вул. Б.Хмельницького
Пропоную свій Офіс в Оренду в Центрі Києва: вул. Б.Хмельницького 59, 3/5 цегл. Загальна площа 113 кв.м. Ставка оренди 38.900 грн./міс. (345 грн./кв.м).+ 50% комиссионные Нежитловий фонд. Повний новий євроремонт. 4 кабінети + приймальня + обладнана міні-кухня + 2 санвузли. Відремонтоване парадне. Стоянка для автомобілів. 5 міських телефонних ліній. Вдале планування. Кондиціонери, міні Атс, розведена комп’ютерна та телефонна мережа, сигналізація (охоронна, пожежна), відеоспостереження, електрозамок, броньовані двері, решітки на вікнах, бойлер, вбудовані шафи, антресолі і т.ін.
Зручні транспортні комунікації: метро, під’їзд с вулиць Б.Хмельницького, О.Гончара, Бульварно-Кудрявської, бульвара Т.Шевченка, площі Перемоги. Відмінне розташування для бізнесу - прохідне місце, діловий центр, розвинена інфраструктура.
Довгостроково, Заставний платіж за 1 місяць. код:0bffd6e6
Пропоную свій Офіс в Оренду в Центрі Києва: вул. Б.Хмельницького 59, 3/5 цегл. Загальна площа 113 кв.м. Ставка оренди 38.900 грн./міс. (345 грн./кв.м).+ 50% комиссионные Нежитловий фонд. Повний новий євроремонт. 4 кабінети + приймальня + обладнана міні-кухня + 2 санвузли. Відремонтоване парадне. Стоянка для автомобілів. 5 міських телефонних ліній. Вдале планування. Кондиціонери, міні Атс, розведена комп’ютерна та телефонна мережа, сигналізація (охоронна, пожежна), відеоспостереження, електрозамок, броньовані двері, решітки на вікнах, бойлер, вбудовані шафи, антресолі і т.ін.
Зручні транспортні комунікації: метро, під’їзд с вулиць Б.Хмельницького, О.Гончара, Бульварно-Кудрявської, бульвара Т.Шевченка, площі Перемоги. Відмінне розташування для бізнесу - прохідне місце, діловий центр, розвинена інфраструктура.
Довгостроково, Заставний платіж за 1 місяць. код:0bffd6e6
-
Объявление откомпании
Характеристики
-
Тип нерухомостіОфіс
-
Загальна площа113
Ціна:38 900 грн
- Київ