Объявление больше не публикуется на сайте
продаж офісне приміщення Київ, Дарницький, 130000 $
130 000 $
Киев
30 Октября 2025, 06:30
Просмотров: 333
Контакти для зв’язку: 0960506650 Владелец. Продам нежитлове приміщення (магазин) в Бц Паралель, загальною площею 65 м2
БЦ розташований у Дарницькому р-ні, ст.м.Позняки 70 м! Житловий масив Позняки. Мікрорайон із великою щільністю населення. Прохідне місце. Поряд: Трц Піраміда, супермаркети, бутики, кафе, ресторани, відділення банків та пошти
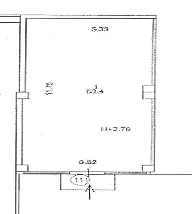
Приміщення розташовано на 1 пов./4 пов . торгово-офісному Бц. Має окремий вхід. Вітринні вікна на фасад. Якісний, сучасний ремонт. Оснащення: кондиціонер, вентиляція, електричний котел опалення. Висота стелі 2,8 м. На даний час приміщення займає Ат Укрпошта. Приміщення розділене перегородкою на 2 кімнати. Має свій санвузол, підведено водопостачання / водовідведення. Кондиціонер. Охорона, ведеться відеоспостереження всього Бц та контуру. Є підземний паркінг -1 поверх, можна використовувати як укриття. Пожежна сигналізація, серверна кімната, кабельна мережа інтернет. Приміщення має прямокутну форму: м. Рік будівництва 2016р
БЦ має свій ел/генератор!
Власник юридична особа. Безготівковий розрахунок. Без комісії.
Вартість 2000 $ / m2. Загальна вартість = 130.000 $
Контактний телефон Власника: код:60d01e32
БЦ розташований у Дарницькому р-ні, ст.м.Позняки 70 м! Житловий масив Позняки. Мікрорайон із великою щільністю населення. Прохідне місце. Поряд: Трц Піраміда, супермаркети, бутики, кафе, ресторани, відділення банків та пошти
Приміщення розташовано на 1 пов./4 пов . торгово-офісному Бц. Має окремий вхід. Вітринні вікна на фасад. Якісний, сучасний ремонт. Оснащення: кондиціонер, вентиляція, електричний котел опалення. Висота стелі 2,8 м. На даний час приміщення займає Ат Укрпошта. Приміщення розділене перегородкою на 2 кімнати. Має свій санвузол, підведено водопостачання / водовідведення. Кондиціонер. Охорона, ведеться відеоспостереження всього Бц та контуру. Є підземний паркінг -1 поверх, можна використовувати як укриття. Пожежна сигналізація, серверна кімната, кабельна мережа інтернет. Приміщення має прямокутну форму: м. Рік будівництва 2016р
БЦ має свій ел/генератор!
Власник юридична особа. Безготівковий розрахунок. Без комісії.
Вартість 2000 $ / m2. Загальна вартість = 130.000 $
Контактний телефон Власника: код:60d01e32
-
Объявление откомпании
Характеристики
-
Тип недвижимостиОфис
-
Общая площадь65
Цена:130 000 $
- Киев