Объявление больше не публикуется на сайте
продаж офісне приміщення Харків, Салтівський, 66000 $
66 000 $
Харьков
29 Апреля 2025, 06:31
Просмотров: 531
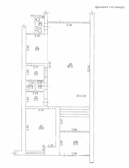
Контакти для зв’язку: 0673724118 Олена. продаж вбудованого нежитлового приміщення: Харків, вул.Павлова Академіка, 160. Загальна площа 136,2 кв.м.
Приміщення розташоване в 350 метрах від ст.метро Героїв Праці, на 1-му поверсі 3-поверхової будівлі кінотеатру Познань, всередині різний рівень підлоги (сходинки). Приміщення має окремий вхід, зі сходами, зорієнтований на червону лінію вулиці Павлова Академіка, та запасний вихід до приміщень кінотеатру. Приміщення потребує поточного ремонту (є сліди грибка), обладнане системами електропостачання, водопостачання та водовідведення, опалення (від котельні кінотеатру), однак, всі вони підключені через мережі будівлі кінотеатру та не обслуговуються. Облаштовані пожежна та охоронна сигналізація. Власник - юр.особа. Вартість із Пдв. код:42451cff
Приміщення розташоване в 350 метрах від ст.метро Героїв Праці, на 1-му поверсі 3-поверхової будівлі кінотеатру Познань, всередині різний рівень підлоги (сходинки). Приміщення має окремий вхід, зі сходами, зорієнтований на червону лінію вулиці Павлова Академіка, та запасний вихід до приміщень кінотеатру. Приміщення потребує поточного ремонту (є сліди грибка), обладнане системами електропостачання, водопостачання та водовідведення, опалення (від котельні кінотеатру), однак, всі вони підключені через мережі будівлі кінотеатру та не обслуговуються. Облаштовані пожежна та охоронна сигналізація. Власник - юр.особа. Вартість із Пдв. код:42451cff
-
Объявление откомпании
Характеристики
-
Тип недвижимостиОфис
-
Общая площадь136.2
Цена:66 000 $
- Харьков