Объявление больше не публикуется на сайте
продаж 6-к будинок Обухівський, Круглик, 250000 $
250 000 $
Киев
30 Апреля 2025, 06:31
Просмотров: 338
Контакти для зв’язку: 0955222684 Ольга. Київська область
Фастівський район
с. Круглик
Будинок знаходиться в мальовничому місці поруч з озером та лісом!
10 сот земельна ділянка.
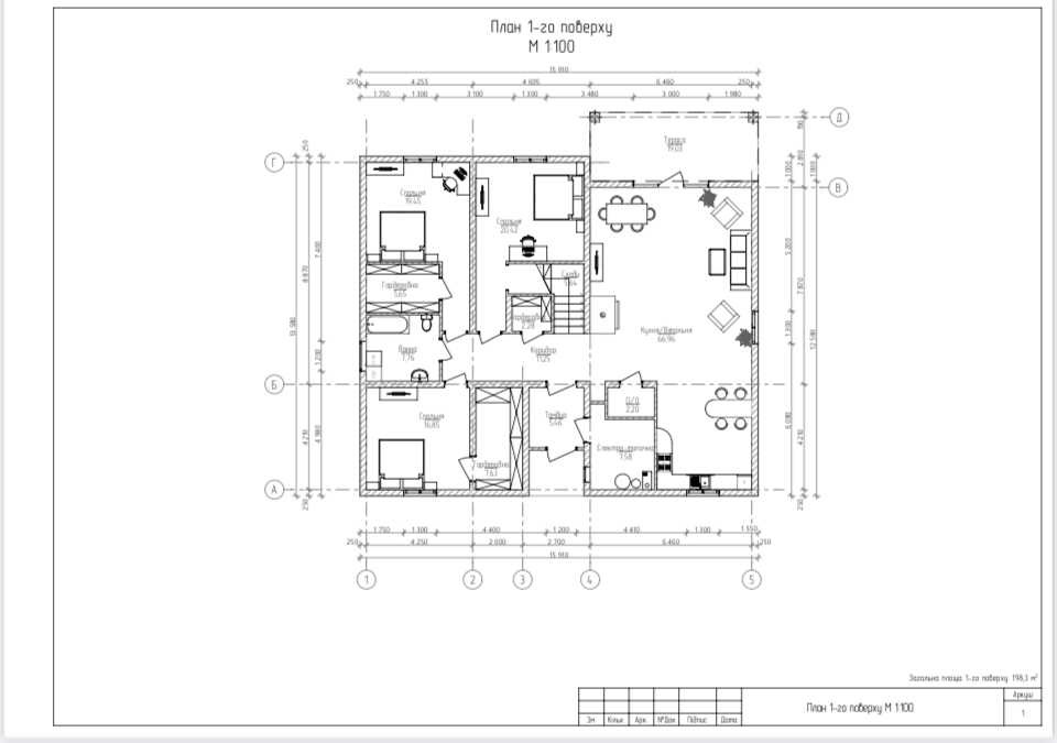
Будинок 396 м2 побудований з газоблоку і утеплений пінопластом 10 см, оздоблення - підготовка під декоративну штукатурку.
2-ох поверховий з терасами на поверхах.
На першому поверсі:
- котельня;
- санвузол;
- простора кухня-вітальня з каміном та виходом на терасу у внутрішній двір;
- 3 спальні з гардеробними;
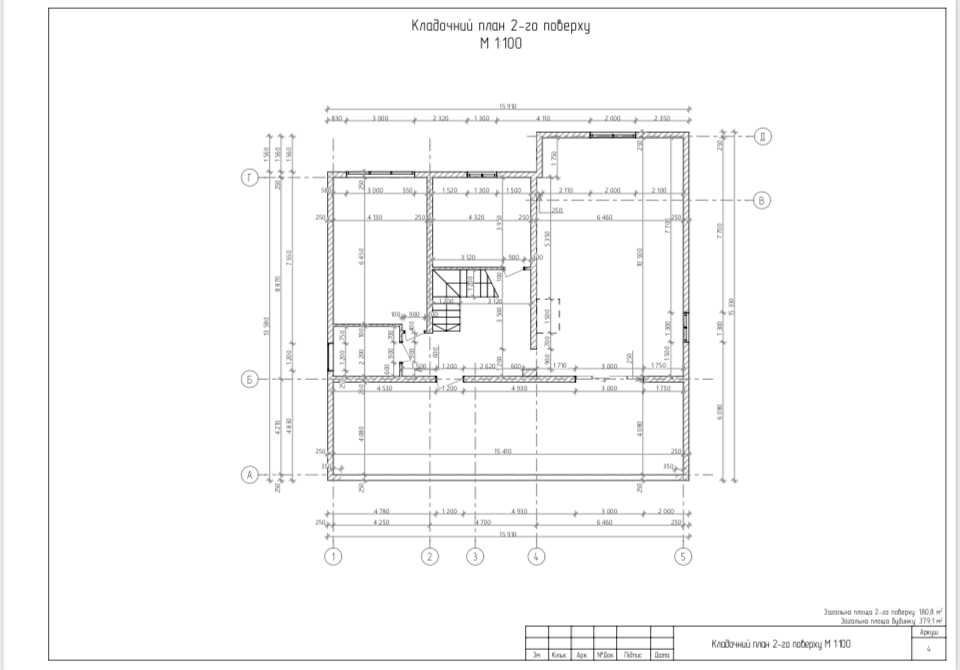
Другий поверх:
- кімната для відпочинку(більярд і т.д.);
- ігрова кімната для діток;
- спальня;
- санвузол;
- тераса з видом на озеро та ліс.
Баня з душем та кімнатою для відпочинку і кухня.
На вулиці мангал та обідня зона.
Технічні комунікації:
- розводка каналізації та електрики по будинку;
- якісні вікна Rehau;
- внутрішні перегородки газоблок - 10 см
- висота до стелі - 3,2 м;
- чистова стяжка підлоги 10-15 см;
- чистова стукатурка на стінах;
- зроблені відкоси на вікнах;
- скважина 30 м (питна вода);
- каналізація 3 кільця по 2 м на будинок;
- каналізація - 2 кільця по 1 м на баню;
- тераса 60 м(2 поверх);
- 6 кВт живлення електроенергії (з можливістю докупити);
- інтернет - Максимум Нет;
- газова труба прокладена по вулиці;
- асфальтована дорога;
- поруч Жк LakeWood;
- плита перекриття і дах 2 -го поверху - 20 см;
- на даху гідроізоляція без утеплення;
- тераса другого поверху утеплена пінопластом 25 см з гідроізоляцією; код:6e3a0cf2
Фастівський район
с. Круглик
Будинок знаходиться в мальовничому місці поруч з озером та лісом!
10 сот земельна ділянка.
Будинок 396 м2 побудований з газоблоку і утеплений пінопластом 10 см, оздоблення - підготовка під декоративну штукатурку.
2-ох поверховий з терасами на поверхах.
На першому поверсі:
- котельня;
- санвузол;
- простора кухня-вітальня з каміном та виходом на терасу у внутрішній двір;
- 3 спальні з гардеробними;
Другий поверх:
- кімната для відпочинку(більярд і т.д.);
- ігрова кімната для діток;
- спальня;
- санвузол;
- тераса з видом на озеро та ліс.
Баня з душем та кімнатою для відпочинку і кухня.
На вулиці мангал та обідня зона.
Технічні комунікації:
- розводка каналізації та електрики по будинку;
- якісні вікна Rehau;
- внутрішні перегородки газоблок - 10 см
- висота до стелі - 3,2 м;
- чистова стяжка підлоги 10-15 см;
- чистова стукатурка на стінах;
- зроблені відкоси на вікнах;
- скважина 30 м (питна вода);
- каналізація 3 кільця по 2 м на будинок;
- каналізація - 2 кільця по 1 м на баню;
- тераса 60 м(2 поверх);
- 6 кВт живлення електроенергії (з можливістю докупити);
- інтернет - Максимум Нет;
- газова труба прокладена по вулиці;
- асфальтована дорога;
- поруч Жк LakeWood;
- плита перекриття і дах 2 -го поверху - 20 см;
- на даху гідроізоляція без утеплення;
- тераса другого поверху утеплена пінопластом 25 см з гідроізоляцією; код:6e3a0cf2
-
Объявление откомпании
Характеристики
-
Состояние доматребует ремонта
-
Количество этажей2 этажа
-
Площадь дома396 м²
-
Площадь участка10 (сотки)
-
Высота потолков320 см
-
Санузел2 и более
-
Количество комнат5 и более комнат
-
Жилая площадь180 м²
-
Площадь кухни65 м²
Цена:250 000 $
- Киев