Объявление больше не публикуется на сайте
продаж 8-к будинок Дніпро, Центральний, 80000 $
80 000 $
Днепр (Днепропетровск)
5 Августа 2025, 06:31
Просмотров: 491
Контакти для зв’язку: 0679109770 Алена . Продам участок с домом в Центре, ул.Флотская.
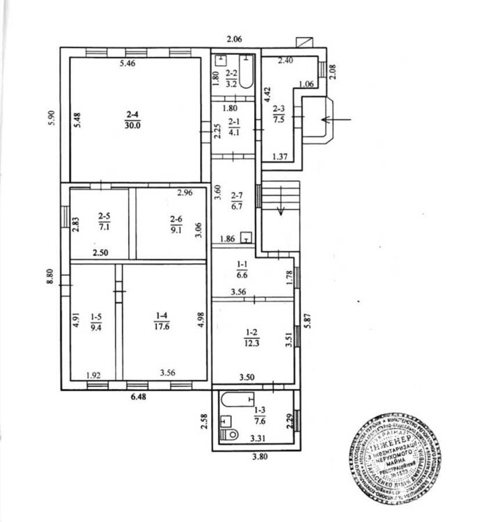
Общая площадь дома 121 кв/м.
Дом под ремонт.
Есть 9 сот приватизированной земли.
Кадастровые номера есть.
Участок ровный, огороженный.
На участке имеется гараж и хоз/постройка.
Рядом ул.Рабочая, Надежды Алексеенко, Философская, Юрия Савченко, Владимира Антоновича, пр.Леси Украинки, Александра Поля.
Звоните, посмотрим, договоримся.
80000 ум.од.
Продам ділянку з будинком у Центрі, вул.Флотська.
Загальна площа будинку 121 кв.м
Будинок під ремонт.
Є 9 сотень приватизованої землі.
Кадастрові номери є.
Ділянка рівна, обгороджена.
На ділянці є гараж та госп/будівля.
Поруч вул.Робоча, Надії Алексєєнко, Філософська, Юрія Савченка, Володимира Антоновича, пр.Лесі Українки, Олександра Поля.
Телефонуйте, подивимося, домовимось. код:dee01a1b
Общая площадь дома 121 кв/м.
Дом под ремонт.
Есть 9 сот приватизированной земли.
Кадастровые номера есть.
Участок ровный, огороженный.
На участке имеется гараж и хоз/постройка.
Рядом ул.Рабочая, Надежды Алексеенко, Философская, Юрия Савченко, Владимира Антоновича, пр.Леси Украинки, Александра Поля.
Звоните, посмотрим, договоримся.
80000 ум.од.
Продам ділянку з будинком у Центрі, вул.Флотська.
Загальна площа будинку 121 кв.м
Будинок під ремонт.
Є 9 сотень приватизованої землі.
Кадастрові номери є.
Ділянка рівна, обгороджена.
На ділянці є гараж та госп/будівля.
Поруч вул.Робоча, Надії Алексєєнко, Філософська, Юрія Савченка, Володимира Антоновича, пр.Лесі Українки, Олександра Поля.
Телефонуйте, подивимося, домовимось. код:dee01a1b
-
Объявление откомпании
Характеристики
-
Состояние доматребует ремонта
-
Количество этажей1 этаж
-
Площадь дома121 м²
-
Площадь участка9 (сотки)
-
Высота потолков300 см
-
Санузел2 и более
-
Количество комнат5 и более комнат
-
Жилая площадь43 м²
-
Площадь кухни12 м²
Цена:80 000 $
- Днепр (Днепропетровск)