Объявление больше не публикуется на сайте
продаж 5-к будинок Бучанський, Ірпінь, 72000 $
72 000 $
Ирпень
8 Августа 2025, 06:30
Просмотров: 551
Контакти для зв’язку: 0983218042 Юлия. Продається дуплекс 169 м2 у мальовничому спокійному місці Ірпіня по вулиці Зоряній.
Дуплекс знаходиться на 2.53 сотках землі, ділянка рівної форми.
Зручне та продумане планування будинку: простора вітальня, обєднана з кухонною зоною, два санвузли, три спальні та кабінет.
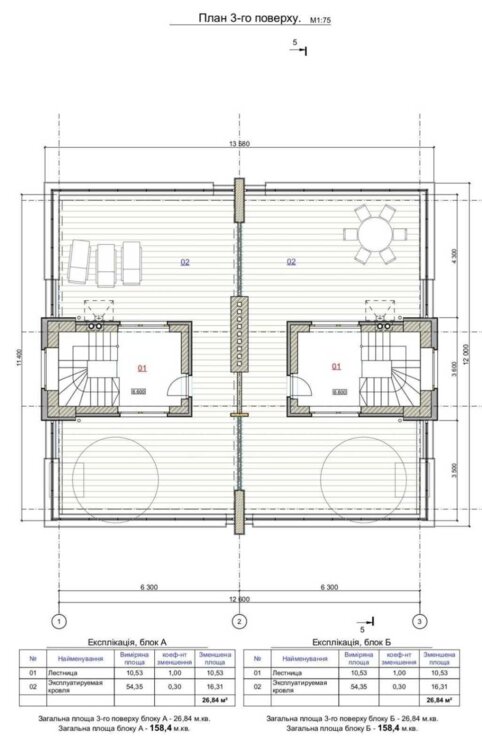
Площа двох житлових поверхів складає 132 кв. м., третій поврх 27 кв. м. (де є можливість зробити додатково кухню і санвузол), та дві тераси.
Спроектована власна земельна ділянка, де можна облаштувати зону відпочинку, наприклад, з басейном та дитячим майданчиком.
Для зберігання автомобілів два машиномісця біля будинку.
Усередині без оздоблення,але у нас є можливість за додаткову плату і за вашим бажанням зробити ремонт під ключ.
Стіни керамоблок. Перекриття залізобетонні плити, сходи на другийм та третій поверхи монолітні.
Дах ПВХ-мембрана де розташована зона відпочинку, утеплення 200 мм.
Зовнішнє оздоблення стін декоративна штукатурка та утеплення мінватою товщиною 100 мм.
Вхідні двері металеві протипожежні із Мдф накладкою.
За енерго- та теплозбереження відповідають вікна Rehau євро 70 з двокамерним склопакетом
Каналізація - септик, водопостачання скважина глибиною 42 м, газопостачання та електрика 3 фази 16 кВт.
Кордони земельної ділянки обладнані парканом.
Теріторія під охороною.
Будинок майже готовий, залишилось зробити прибудинкову та паркан.
Затишний район з новими будинками та природою.
Оформлення мінімальне.
Без комісії для покупця.
Можливе р
Дуплекс знаходиться на 2.53 сотках землі, ділянка рівної форми.
Зручне та продумане планування будинку: простора вітальня, обєднана з кухонною зоною, два санвузли, три спальні та кабінет.
Площа двох житлових поверхів складає 132 кв. м., третій поврх 27 кв. м. (де є можливість зробити додатково кухню і санвузол), та дві тераси.
Спроектована власна земельна ділянка, де можна облаштувати зону відпочинку, наприклад, з басейном та дитячим майданчиком.
Для зберігання автомобілів два машиномісця біля будинку.
Усередині без оздоблення,але у нас є можливість за додаткову плату і за вашим бажанням зробити ремонт під ключ.
Стіни керамоблок. Перекриття залізобетонні плити, сходи на другийм та третій поверхи монолітні.
Дах ПВХ-мембрана де розташована зона відпочинку, утеплення 200 мм.
Зовнішнє оздоблення стін декоративна штукатурка та утеплення мінватою товщиною 100 мм.
Вхідні двері металеві протипожежні із Мдф накладкою.
За енерго- та теплозбереження відповідають вікна Rehau євро 70 з двокамерним склопакетом
Каналізація - септик, водопостачання скважина глибиною 42 м, газопостачання та електрика 3 фази 16 кВт.
Кордони земельної ділянки обладнані парканом.
Теріторія під охороною.
Будинок майже готовий, залишилось зробити прибудинкову та паркан.
Затишний район з новими будинками та природою.
Оформлення мінімальне.
Без комісії для покупця.
Можливе р
-
Объявление откомпании
Характеристики
-
Состояние доматребует ремонта
-
Количество этажей3 этажа и более
-
Площадь дома159 м²
-
Площадь участка3 (сотки)
-
Высота потолков300 см
-
Санузел2 и более
-
Количество комнат5 и более комнат
-
Жилая площадь100 м²
-
Площадь кухни40 м²
Цена:72 000 $
- Ирпень