Продам 2-х поверховий та гостьовий будинок з гаражем в с.Фонтанка (5 .

350 000 $
Одесса 16 Февраля 2026, 05:51 Просмотров: 1246
Продам 2-х поверховий та гостьовий будинок з гаражем в с.Фонтанка (5 . Продам 2-х поверховий та гостьовий будинок з гаражем в с.Фонтанка (5 . Продам 2-х поверховий та гостьовий будинок з гаражем в с.Фонтанка (5 . Продам 2-х поверховий та гостьовий будинок з гаражем в с.Фонтанка (5 . Продам 2-х поверховий та гостьовий будинок з гаражем в с.Фонтанка (5 . Продам 2-х поверховий та гостьовий будинок з гаражем в с.Фонтанка (5 . Продам 2-х поверховий та гостьовий будинок з гаражем в с.Фонтанка (5 . Продам 2-х поверховий та гостьовий будинок з гаражем в с.Фонтанка (5 .
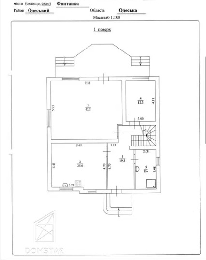
Пропонується до продажу 2-х поверховий та гостьовий будинок з гаражем в с.Фонтанка (5 км від Одеси). Будинок загальною площею 250 м.кв. розташований на 10 сотках землі. В основному будинку є чотири великі спальні, два санвузли, вітальня, кухня, тераса. Гостьовий будинок з гаражем, загальною площею 100м.кв., має гостинну кімнату, кухню та санвузол. Також, побудовано котельню. На території окремо збудовано погреб та барбекю, є теплиця. Є підʼїзд з двох вулиць. Повний пакет документів! ID 8171
  • Объявление от
    компании

Характеристики

  • Количество этажей
    2 этажа
  • Площадь дома
    350 м²

Расположение

    • Район
      Киевский
Цена:350 000 $
Цена согласно курсу
    Поделитесь объявлением с друзьями
    • Одесса
    • +380937 972121
    • +380957 972121
    • +380987 972121

    Похожие предложения

    показать ещё
    Загрузка...