Объявление больше не публикуется на сайте
продаж 10-к будинок Київ, Солом`янський, 400000 $
400 000 $
Киев
16 Марта 2023, 17:16
Просмотров: 100
Контакти для зв’язку: 0503555190 Михаил. Будинок 725 кв.м.,Совки, вул.Каменярів 68, Метро Васильківськая, Власник
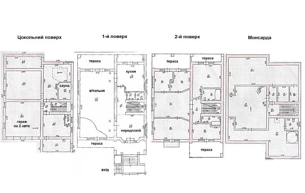
Дуже гарний капітальний будинок 725 кв.м., 2000 року забудови, що розташований у тихому, зеленому районі міста в приватному сектрі, що 10 хвилинах від центу Києва, у 1.5 км від Метро Васильківська та в 5 км віід Ocean Plaza
Будинок має 4 рівня. Збудован в класичному європейському стилі з балюстрадами та терасами.
1 рівень це гараж на 2 авто з автоматичними воротами, котельна, сауна, невеличкий басейн, санвузел, біл`ярдна, кімнати відпочинку, технічні приміщення.
2 рівень передпокій 27 кв.м., простора вітяльня 91 кв.м.з виходом на терасу, кухня 28 кв.м., санвузел.
3 рівень вітальня та п`ять спалень, з виходами на три тераси та балкон, два санвузла.
4 рівень зона відпочинку з дуже красивими різними дерев`яними сходами ручної роботи борочному стилі, зал фітнесу, великий санвузел з джакузі, гардеробна та інше.
На вїзді на ділянку автоматичні ворота, сама ділянка з майданчиком-парковкою на 2-3 машини, зелена територія з декоративними насадженнями.
На протязі останніх років будинок здавався в оренду, зараз потребує деякого оновлення та косметичного ремонту.
Комунікації : міський водопровод та каналізація, опалення газ двуконтурний котел Нм-100 потужністю 100 кВт, система водопідготовки, електрична сауна, кондінционери. Вхідна електрична потужність 30кВт.
Земельна ділянка 10 соток не оформлена, у попередьнього власника у 2008 році був договір оренди на 25 ро
Дуже гарний капітальний будинок 725 кв.м., 2000 року забудови, що розташований у тихому, зеленому районі міста в приватному сектрі, що 10 хвилинах від центу Києва, у 1.5 км від Метро Васильківська та в 5 км віід Ocean Plaza
Будинок має 4 рівня. Збудован в класичному європейському стилі з балюстрадами та терасами.
1 рівень це гараж на 2 авто з автоматичними воротами, котельна, сауна, невеличкий басейн, санвузел, біл`ярдна, кімнати відпочинку, технічні приміщення.
2 рівень передпокій 27 кв.м., простора вітяльня 91 кв.м.з виходом на терасу, кухня 28 кв.м., санвузел.
3 рівень вітальня та п`ять спалень, з виходами на три тераси та балкон, два санвузла.
4 рівень зона відпочинку з дуже красивими різними дерев`яними сходами ручної роботи борочному стилі, зал фітнесу, великий санвузел з джакузі, гардеробна та інше.
На вїзді на ділянку автоматичні ворота, сама ділянка з майданчиком-парковкою на 2-3 машини, зелена територія з декоративними насадженнями.
На протязі останніх років будинок здавався в оренду, зараз потребує деякого оновлення та косметичного ремонту.
Комунікації : міський водопровод та каналізація, опалення газ двуконтурний котел Нм-100 потужністю 100 кВт, система водопідготовки, електрична сауна, кондінционери. Вхідна електрична потужність 30кВт.
Земельна ділянка 10 соток не оформлена, у попередьнього власника у 2008 році був договір оренди на 25 ро
-
Объявление откомпании
Характеристики
-
Состояние доматребует ремонта
-
Количество этажей3 этажа и более
-
Площадь дома725 м²
-
Площадь участка10 (сотки)
-
Высота потолков300 см
-
Санузел2 и более
-
Количество комнат5 и более комнат
-
Площадь кухни28 м²
Цена:400 000 $
- Киев