Украина
Одесса
24 Февраля 2026, 11:24
Просмотров: 359
- Лучшие предложения
- Объявлений на сайте: 121
- Посмотреть все объявления автора
- Подписаться на автора
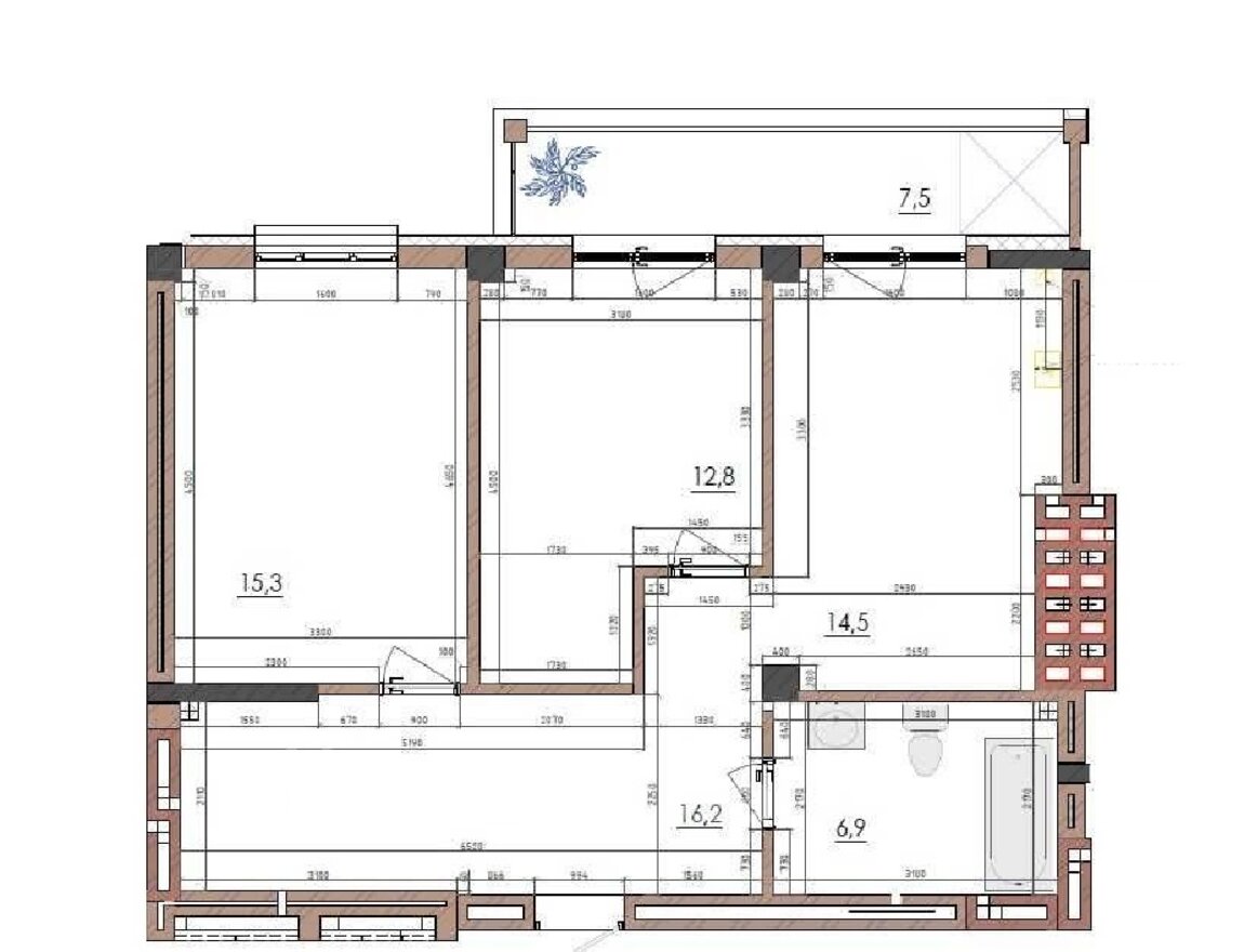
Пропоную до продажу простору 2-кімнатну квартиру в зданому будинку ЖК «Парк Совіньйон» — сучасний формат житла для тих, хто цінує якість, комфорт і тишу.
4 поверх із 6
Продумане планування:
– дві повноцінні кімнати
– кухня-їдальня
– великий балкон
Квартира має грамотно виконане перепланування зі зведенням стін із цегли (не гіпсокартон! ), що забезпечує значно кращу шумоізоляцію та довговічність конструкції. Це важлива перевага для комфортного проживання.
Стан — під чистове оздоблення, що дозволяє реалізувати власний дизайн без зайвих витрат на демонтаж.
Автономне опалення — встановлено двоконтурний газовий котел.
Ви самі контролюєте температуру та витрати.
Переваги комплексу:
✔️ Малоповерхова цегляна забудова
✔️ Дуже красива, доглянута територія
✔️ Професійна керуюча компанія
✔️ Тихий, спокійний район
У пішій доступності:
магазини та ринки
банки, пошта
маршрутки та трамвай
море — поруч
Це квартира для тих, хто шукає якість будівництва, автономність і комфортне середовище для життя.
Телефонуйте — організую показ у зручний для вас час.
Працюю професійно та відкрито.
Агенція. Комісія.
4 поверх із 6
Продумане планування:
– дві повноцінні кімнати
– кухня-їдальня
– великий балкон
Квартира має грамотно виконане перепланування зі зведенням стін із цегли (не гіпсокартон! ), що забезпечує значно кращу шумоізоляцію та довговічність конструкції. Це важлива перевага для комфортного проживання.
Стан — під чистове оздоблення, що дозволяє реалізувати власний дизайн без зайвих витрат на демонтаж.
Автономне опалення — встановлено двоконтурний газовий котел.
Ви самі контролюєте температуру та витрати.
Переваги комплексу:
✔️ Малоповерхова цегляна забудова
✔️ Дуже красива, доглянута територія
✔️ Професійна керуюча компанія
✔️ Тихий, спокійний район
У пішій доступності:
магазини та ринки
банки, пошта
маршрутки та трамвай
море — поруч
Це квартира для тих, хто шукає якість будівництва, автономність і комфортне середовище для життя.
Телефонуйте — організую показ у зручний для вас час.
Працюю професійно та відкрито.
Агенція. Комісія.
Характеристики
-
Количество комнат2 комнаты
-
Тип комнатраздельные
-
Общая площадь68 м²
-
Тип домакирпичный
-
Тип строенияСдан в эксплуатацию
-
Этаж4
-
Этажность дома6
-
Расположение в домев середине дома
-
Планировкаиндивидуальная
-
Санузелсовмещённый
-
Балкон/лоджия1
-
Парковкаподземная
-
Состояние квартирытребует капитального ремонта
-
Отоплениеавтономное на квартиру
Расположение
-
УлицаТрамвайная
-
РайонСовиньон
Цена:62 000 $
- Одесса
- +38067 7864732
- +380734 084356
- +380756 372950