Украина
- Дарья.АН
- Объявлений на сайте: 28
- Посмотреть все объявления автора
- Подписаться на автора
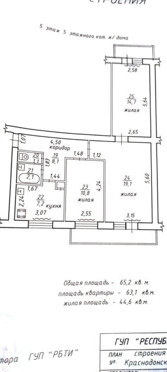
Продаётся трёхкомнатная квартира в районе Балка
Квартира расположена на 5-м этаже 5-этажного дома, в середине дома, тёплая и светлая.
Общая площадь — 65,2 м².
Планировка:
• одна комната раздельная,
• две смежные (есть возможность перепланировки и сделать все комнаты раздельными),
• кухня — 7,2 м²,
• санузел раздельный.
Есть два балкона 6 и 2.5 метров, не застеклены.
Год назад заменены все окна и балконные блоки.
С крышей проблем нет — крыша после капитального ремонта.
Квартира подойдёт под ремонт, отличная возможность сделать всё под себя.
В квартире остаётся вся мебель (кроме телевизоров), по желанию покупателя мебель могут полностью вывезти.
Отличное расположение: рядом вся необходимая инфраструктура — Тернополь, магазины, рынки, поликлиники, школы, детские сады, остановки общественного транспорта и т. д.
Хороший вариант для семьи или под инвестицию.
Видеообзор: https://www.instagram.com/reel/DUTpQX9jup_/?igsh=OHNsNTdkbTRoYmZ1
Квартира расположена на 5-м этаже 5-этажного дома, в середине дома, тёплая и светлая.
Общая площадь — 65,2 м².
Планировка:
• одна комната раздельная,
• две смежные (есть возможность перепланировки и сделать все комнаты раздельными),
• кухня — 7,2 м²,
• санузел раздельный.
Есть два балкона 6 и 2.5 метров, не застеклены.
Год назад заменены все окна и балконные блоки.
С крышей проблем нет — крыша после капитального ремонта.
Квартира подойдёт под ремонт, отличная возможность сделать всё под себя.
В квартире остаётся вся мебель (кроме телевизоров), по желанию покупателя мебель могут полностью вывезти.
Отличное расположение: рядом вся необходимая инфраструктура — Тернополь, магазины, рынки, поликлиники, школы, детские сады, остановки общественного транспорта и т. д.
Хороший вариант для семьи или под инвестицию.
Видеообзор: https://www.instagram.com/reel/DUTpQX9jup_/?igsh=OHNsNTdkbTRoYmZ1
Характеристики
-
Количество комнат3 комнаты
-
Тип комнатесть смежные комнаты
-
Общая площадь65.2 м²
-
Площадь кухни7.2 м²
-
Тип домакотельцовый
-
Тип строенияТиповая застройка
-
Этаж5
-
Этажность дома5
-
Расположение в домев середине дома
-
Санузелраздельный
-
Балкон/лоджия2
-
Парковкаоткрытая
-
Состояние квартирытребует косметического ремонта
-
Отоплениецентральное
Дополнительно
-
Рядом с домомостановка, магазин, супермаркет, рынок, аптека, поликлиника, детский сад, школа, парк
-
мебель✔
-
стеклопакет✔
Расположение
-
УлицаКраснодонская
-
РайонОктябрьский (Балка)
Цена:30 500 $
- Тирасполь
- +37377855361