Харьков
Кишинёв
27 Февраля 2026, 21:20
Просмотров: 325
- serg733899
- Объявлений на сайте: 14
- Посмотреть все объявления автора
- Подписаться на автора
Продажа от хозяина!
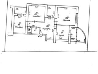
Трехкомнатная квартира в тихом, спальном районе. До набережной р. Днестр примерно 400 м. До Супермаркет "Шериф", остановки общ. транспорта в пешей доступности (5 минут прогулочным шагом).
Квартира имеет уникальную планировку. Большая прихожая и тамбур на две квартиры. С кухни выход на лоджию 9 кв. м. Можно соединить или вынести кухню на лоджию или организовать столовую. Кроме этой лоджии есть еще две, одну из которой можно использовать под сушилку. Ванна, туалет, кухня после кап. ремонта. Коридор в сером варианте, готов под поклейку обоев или нанесению декор. отделки. Квартира находится на первом этаже, но над цокольным этажом, т. е. высоко от уровня земли.
Квартира требует вложений, но имеет большой потенциал для обустройства ее по своему вкусу. Возможен торг. Так же возможен обмен на современный, каменный дом: Карагаш, Слободзея, Чобручи. Рассмотрю варианты.
Трехкомнатная квартира в тихом, спальном районе. До набережной р. Днестр примерно 400 м. До Супермаркет "Шериф", остановки общ. транспорта в пешей доступности (5 минут прогулочным шагом).
Квартира имеет уникальную планировку. Большая прихожая и тамбур на две квартиры. С кухни выход на лоджию 9 кв. м. Можно соединить или вынести кухню на лоджию или организовать столовую. Кроме этой лоджии есть еще две, одну из которой можно использовать под сушилку. Ванна, туалет, кухня после кап. ремонта. Коридор в сером варианте, готов под поклейку обоев или нанесению декор. отделки. Квартира находится на первом этаже, но над цокольным этажом, т. е. высоко от уровня земли.
Квартира требует вложений, но имеет большой потенциал для обустройства ее по своему вкусу. Возможен торг. Так же возможен обмен на современный, каменный дом: Карагаш, Слободзея, Чобручи. Рассмотрю варианты.
Характеристики
-
Количество комнат3 комнаты
-
Тип комнатраздельные
-
Общая площадь72 м²
-
Жилая площадь38 м²
-
Площадь кухни9 м²
-
Тип домаблочный
-
Тип строенияТиповая застройка
-
Этаж1
-
Этажность дома5
-
Расположение в домеугловая
-
Планировкаиндивидуальная
-
Санузелраздельный
-
Балкон/лоджия3
-
Парковкаоткрытая
-
Состояние квартирытребует косметического ремонта
-
Отоплениецентральное
Расположение
-
Улица1го Мая
-
РайонАэропорт
Дополнительно
-
бронированная дверь✔
-
ТВ кабель✔
-
интернет✔
-
мусоропровод✔
-
Рядом с домомостановка, магазин, супермаркет, рынок, аптека, поликлиника, детский сад, парк
-
кондиционер✔
Цена:60 000 $
- Кишинёв
- +37377 770132