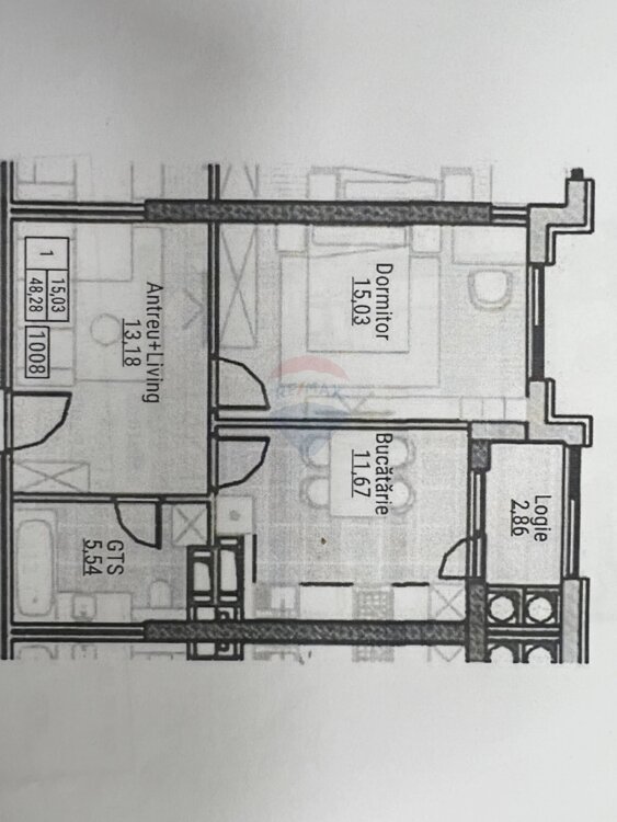
Apartament cu 1 cameră și living în complexul rezidențial Colina Verd

57 212 €
Кишинёв 17 Октября 2025, 00:01 Просмотров: 27
Complex modern situat pe str. Alexandr Orlov, într-o zonă liniștită și verde, cu acces rapid spre Chișinău. Blocuri noi, construcție de calitate, curte închisă, parcare, spații verzi și loc de joacă. Posibilitate de achitare în rate Complex cu primele două tranșe deja date în exploatare Ideal pentru locuire sau investiție Colina Verde Residence – Transa III, Durlești Pentru detalii și oferte: 079 000 362 Fond_locativ Construcții noi.
  • Объявление от
    компании

Характеристики

  • Общая площадь
    48.28 м²
  • Этаж
    10

Расположение

    • Район
      Дурлешть
Цена:57 212 €
По курсу Национального Банка Молдовы 17.12.2025
  • 1 133 060.78 MDL
  • 67 289.89 USD
  • 5 342 106.44 RUB
  • 291 380.13 RON
  • 2 838 328.60 UAH
Поделитесь объявлением с друзьями
  • Кишинёв
  • +37379 000362

Похожие предложения

показать ещё
Загрузка...