Объявление больше не публикуется на сайте

63 Жемчужина: 2к квартира в уникальном комплексе будущего Kadorr City!

62 000 $
Одесса 11 Июля 2025, 23:15 Просмотров: 273
63 Жемчужина: 2к квартира в уникальном комплексе будущего Kadorr City! 63 Жемчужина: 2к квартира в уникальном комплексе будущего Kadorr City! 63 Жемчужина: 2к квартира в уникальном комплексе будущего Kadorr City! 63 Жемчужина: 2к квартира в уникальном комплексе будущего Kadorr City! 63 Жемчужина: 2к квартира в уникальном комплексе будущего Kadorr City!
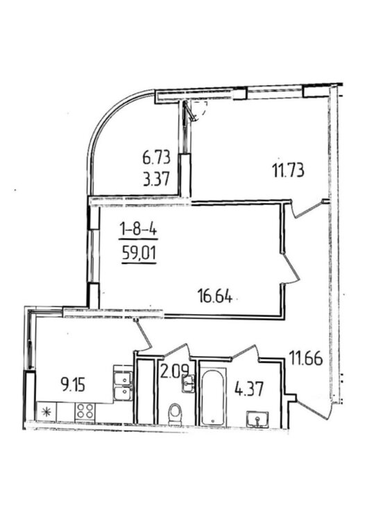
ЖК «63 Жемчужина», ул. Краснова, продам квартиру, расположенную на 8 этаже в новом 24-этажном доме в уникальном современном жилом массиве «Kadorr City», 59/29/9,5 кв. м, две солнечные раздельные комнаты с красивым полукруглым балконом, удобная кухня, окна в потрясающий уютный двор. Комплекс полностью автономный, собственная парковая зона, бассейны, каток, детский сад, фонтаны и аллеи сакур и это только самая малая часть абсолютно нового образа жизни в этом невероятном городе будущего!

Характеристики

  • Количество комнат
    2 комнаты
  • Тип комнат
    раздельные
  • Общая площадь
    59 м²
  • Жилая площадь
    29 м²
  • Площадь кухни
    9.5 м²
  • Тип дома
    кирпичный
  • Тип строения
    Сдан в эксплуатацию
  • Этаж
    8
  • Этажность дома
    24
  • Расположение в доме
    угловая
  • Планировка
    индивидуальная
  • Санузел
    совмещённый
  • Балкон/лоджия
    1
  • Парковка
    подземная
  • Состояние квартиры
    требует косметического ремонта
  • Отопление
    автономное на дом

Расположение

  • Улица
    Краснова
  • Номер дома
    3/63
    • Район
      Приморский
Цена:62 000 $
Цена согласно курсу
    • Одесса

    Похожие предложения

    показать ещё
    Загрузка...