Объявление больше не публикуется на сайте
5ти комнатная ДВУХУРОВНЕВАЯ квартира на ЧЕРЕМУШКАХ
48 000 $
Одесса
15 Февраля 2025, 15:40
Просмотров: 373
ПРОДАМ!
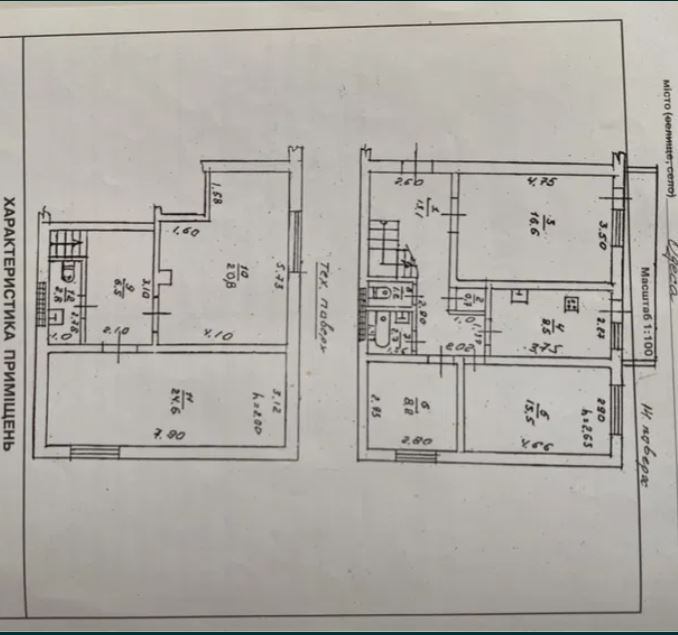
5ти комнатная квартира на Черемушках в Одессе на улице Филатова
Квартира двухуровневая, занимает 14й этаж и техэтаж
Техэтаж узаконен и переведен в жилое помещение
Общая площадь квартиры 123 кв м
Квартира двухсторонняя
Квартира распланирована -
Первый уровень - три раздельные светлые комнаты, кухня, раздельный санузел с ванной, просторная прихожая с деревянной лестницей с выходом на второй уровень
Есть вместительная лоджия с двумя выходами, в большую комнату и в кухню
Второй уровень - две большие комнаты 21 и 26 кв м, санузел и холл с лестницей, соединяющей с первым уровнем
Состояние квартиры хорошее, чистое, жилое
Все коммунальные по счетчикам
В доме два лифта
Отличное месторасположения, рядом площадь Толбухина, Сельпо, амбулатория Семейного доктора, детская поликлиника, много магазинов, кофейни
Очень удобная транспортная развязка в любой район города
ЗВОНИТЕ!
5ти комнатная квартира на Черемушках в Одессе на улице Филатова
Квартира двухуровневая, занимает 14й этаж и техэтаж
Техэтаж узаконен и переведен в жилое помещение
Общая площадь квартиры 123 кв м
Квартира двухсторонняя
Квартира распланирована -
Первый уровень - три раздельные светлые комнаты, кухня, раздельный санузел с ванной, просторная прихожая с деревянной лестницей с выходом на второй уровень
Есть вместительная лоджия с двумя выходами, в большую комнату и в кухню
Второй уровень - две большие комнаты 21 и 26 кв м, санузел и холл с лестницей, соединяющей с первым уровнем
Состояние квартиры хорошее, чистое, жилое
Все коммунальные по счетчикам
В доме два лифта
Отличное месторасположения, рядом площадь Толбухина, Сельпо, амбулатория Семейного доктора, детская поликлиника, много магазинов, кофейни
Очень удобная транспортная развязка в любой район города
ЗВОНИТЕ!
Характеристики
-
Количество комнат4 и более комнат
-
Тип комнатраздельные
-
Общая площадь123 м²
-
Жилая площадь87 м²
-
Площадь кухни9 м²
-
Тип домаблочный
-
Тип строенияСдан в эксплуатацию
-
Этаж14
-
Этажность дома14
-
Расположение в домев середине дома
-
Планировкаиндивидуальная
-
Санузел2 и более
-
Балкон/лоджия1
-
Парковкаоткрытая
-
Состояние квартирытребует косметического ремонта
-
Отоплениецентральное
Расположение
-
УлицаФИЛАТОВА
-
Номер дома5
-
РайонЧеремушки
Цена:48 000 $
- Одесса