Трехкомнатная квартира в ЖК Четыре Сезона"

150 000 $
Одесса 12 Февраля 2026, 05:50 Просмотров: 1705
Трехкомнатная квартира в ЖК Четыре Сезона" Трехкомнатная квартира в ЖК Четыре Сезона" Трехкомнатная квартира в ЖК Четыре Сезона" Трехкомнатная квартира в ЖК Четыре Сезона" Трехкомнатная квартира в ЖК Четыре Сезона" Трехкомнатная квартира в ЖК Четыре Сезона" Трехкомнатная квартира в ЖК Четыре Сезона" Трехкомнатная квартира в ЖК Четыре Сезона"
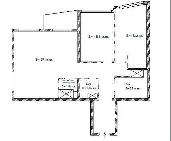
Просторная трехкомнатная квартира площадью 103 кв.м в ЖК "4 Сезона" от СК Будова.Панорамное остекление, балкон застеклен. Квартира просторная и светлая. Окна выходят на юго-запад, в квартире тепло и солнечно. Состояние квартиры - под чистовую отделку. Ремонт выполнялся по дизайн-проекту. В квартире две спальни (увеличены), гардероб, кухня-студия, подсобное помещение, куда вынесен бойлер, два санузла. Проведена вся электрика, разводка сантехники, выводы под аквасторож, выводы под кондиционер в каждую комнату, выводы под теплые полы (коридор, 2 санузла, зона кухни), интернет, сигнализацию, домофон. Во всех комнатах увеличены радиаторы. Оконные проемы все утеплены, на стенах звукоизоляция. Установлены подоконники. Все черновые работы закончены. Закуплена испанская плитка на санузлы и зону кухни (1.5 м. х 65см), теплый пол, аквасторож, полотенцесушитель. Есть возможность приобрести большую кладовку - 5 кв.м. рядом с квартирой и паркинг.На территории жилого комплекса находится детская площадка , магазины и парковка. В доме есть паркинг, территория охраняемая. Отопление обеспечивается автономными крышными газовыми котельными. ID 33262
  • Объявление от
    компании

Характеристики

  • Количество комнат
    3 комнаты
  • Общая площадь
    103 м²
  • Жилая площадь
    34 м²
  • Площадь кухни
    37 м²
  • Этаж
    20
  • Этажность дома
    25

Расположение

    • Район
      Малиновский
Цена:150 000 $
Цена согласно курсу
    Поделитесь объявлением с друзьями
    • Одесса
    • +380937 972121
    • +380957 972121
    • +380987 972121

    Похожие предложения

    показать ещё
    Загрузка...