Se dă în chirie spațiu industrial la Botanica pe șos. Muncești. ...

4 875 €
Кишинёв 9 Января 2026, 15:30 Просмотров: 46
Se dă în chirie spațiu industrial la Botanica pe șos. Muncești. ... Se dă în chirie spațiu industrial la Botanica pe șos. Muncești. ... Se dă în chirie spațiu industrial la Botanica pe șos. Muncești. ... Se dă în chirie spațiu industrial la Botanica pe șos. Muncești. ... Se dă în chirie spațiu industrial la Botanica pe șos. Muncești. ... Se dă în chirie spațiu industrial la Botanica pe șos. Muncești. ...
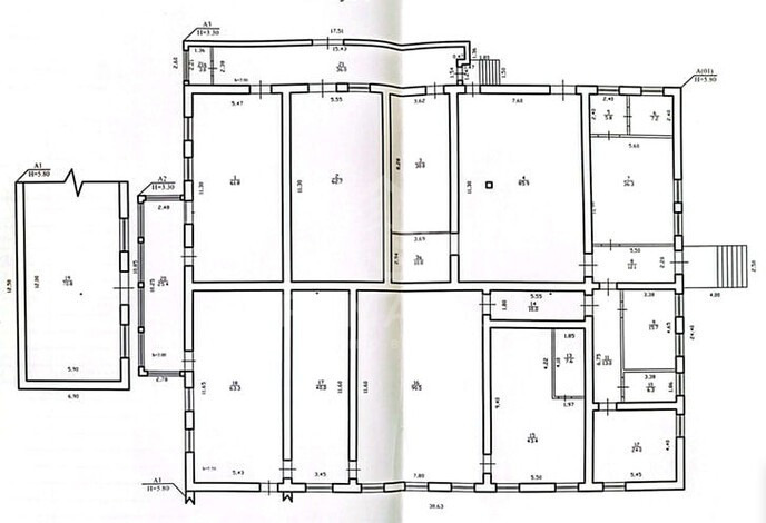
Se dă în chirie spațiu industrial la Botanica pe șos. Muncești. Fostă producere alimentară. Compartimentat în mai multe zone de lucru, cu posibilitatea de replanificat conform cerințelor. - Tavane de 4m - Acces cu Tir - Apă, canalizare - Electricitate 380V, 100+ kW - Supraveghere video - Acces 24/7 - Teritoriu închis - Vestiare - Blocuri sanitare - Oficii Potrivit pentru: - Orice producere și/sau depozit - Producere alimentară - Producere de mobilă - etc.. Telefon: 37378846888 Se dă în chirie spațiu industrial la Botanica pe șos. Muncești. Fostă producere alimentară. Compartimentat în mai multe zone de lucru, cu posibilitatea de replanificat conform cerințelor. - Tavane de 4m - Acces cu Tir - Apă, canalizare - Electricitate 380V, 100+ kW - Supraveghere video - Acces 24/7 - Teritoriu închis - Vestiare - Blocuri sanitare - Oficii Potrivit pentru: - Orice producere și/sau depozit - Producere alimentară - Producere de mobilă - etc.. Телефон: 37378846888
  • Объявление от
    компании

Характеристики

  • Общая площадь
    975

Расположение

    • Район
      Ботаника
Цена:4 875 €
По курсу Национального Банка Молдовы 02.04.2026
  • 98 902.05 MDL
  • 5 654.03 USD
  • 454 722.07 RUB
  • 24 847.26 RON
  • 247 626.56 UAH
Поделитесь объявлением с друзьями
  • Кишинёв
  • +37362 055510
Загрузка...