Объявление больше не публикуется на сайте
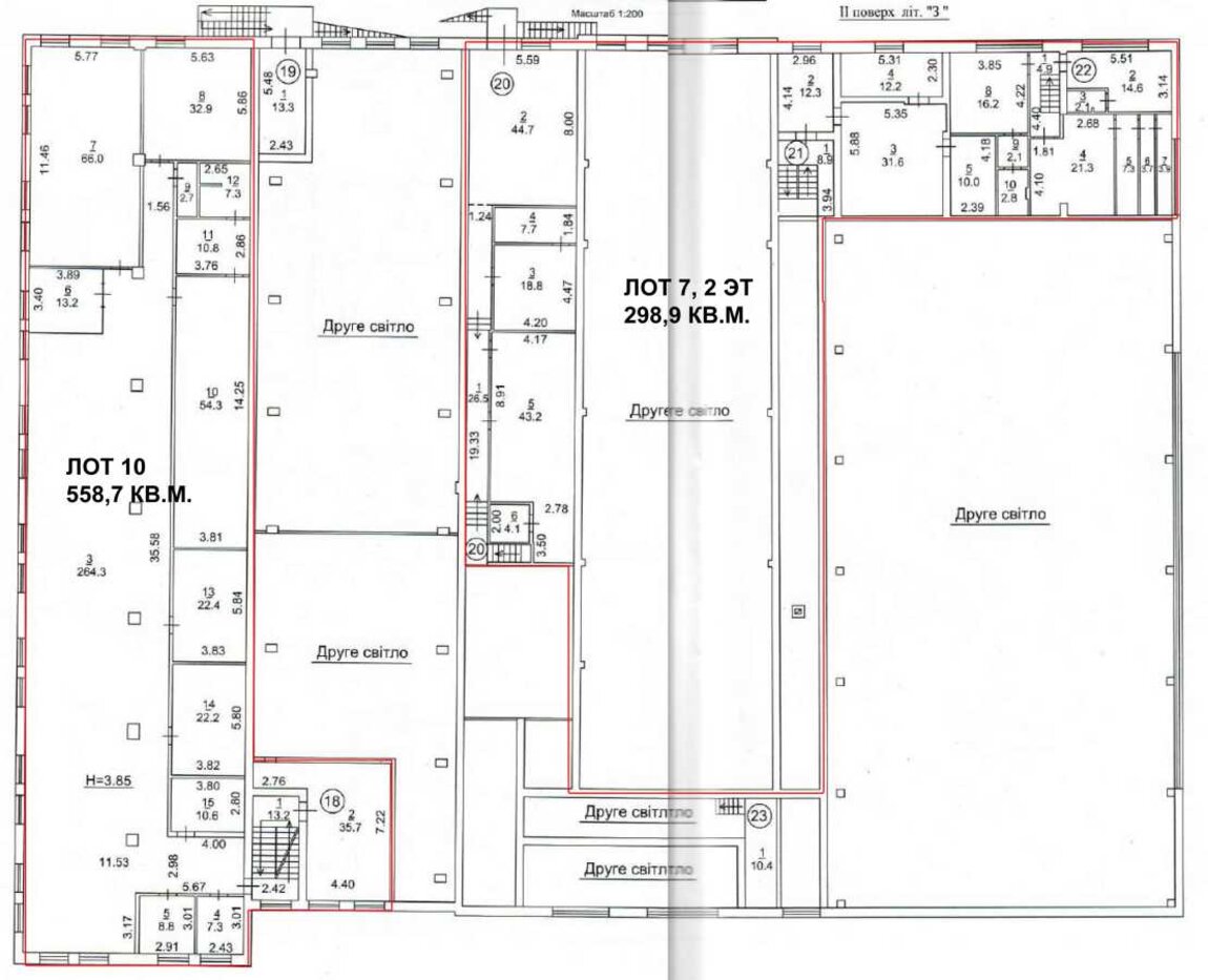
Подол/Куреневка. 70 грн/м2. Помещение 558м2.
39 060 грн
Киев
11 Февраля 2024, 06:31
Просмотров: 271
Контакти для зв’язку: 0504401107 Вера. ул. Куреневская 5/7
Имущественный комплекс;
2 этаж;
Высота потолка 3,85 м
Площадь -558 кв.м с возможным увеличением;
Городские сети и коммуникации;
Бывшее производственно-административное здание, запас прочности.
Отличная визуальная и транспортная доступность.
Остановки общественного транспорта 50-150 м в различные направления Киева.
Арендатор комиссионные не платит.
Сотрудничаем с риэлторами по системе СПП.
Стоимость 100грн/м2, на военное время 70грн/м2.
Есть другие метражи
Предоставляем ремонтные каникулы.
Готовы участвовать частично в ремонте.
Детально на код:8556ab1c
Имущественный комплекс;
2 этаж;
Высота потолка 3,85 м
Площадь -558 кв.м с возможным увеличением;
Городские сети и коммуникации;
Бывшее производственно-административное здание, запас прочности.
Отличная визуальная и транспортная доступность.
Остановки общественного транспорта 50-150 м в различные направления Киева.
Арендатор комиссионные не платит.
Сотрудничаем с риэлторами по системе СПП.
Стоимость 100грн/м2, на военное время 70грн/м2.
Есть другие метражи
Предоставляем ремонтные каникулы.
Готовы участвовать частично в ремонте.
Детально на код:8556ab1c
-
Объявление откомпании
Характеристики
-
Тип недвижимостиПроизводственное помещение
-
Общая площадь558
Цена:39 060 грн
- Киев