Spre chirie se oferă spațiu comercial în sect. sect. Botanica, str. ..

1 800 €
Chişinău 21 Aprilie 2026, 20:20 Vizualizări: 103
Spre chirie se oferă spațiu comercial în sect. sect. Botanica, str. .. Spre chirie se oferă spațiu comercial în sect. sect. Botanica, str. .. Spre chirie se oferă spațiu comercial în sect. sect. Botanica, str. .. Spre chirie se oferă spațiu comercial în sect. sect. Botanica, str. .. Spre chirie se oferă spațiu comercial în sect. sect. Botanica, str. ..
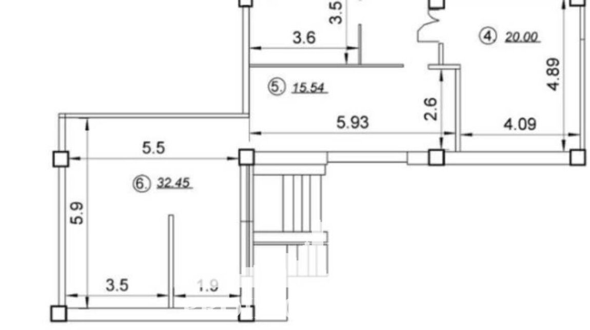
Spre chirie se oferă spațiu comercial în sect. sect. Botanica, str. Dacia. Suprafața totală de 90 mp. Compartimentat în: 4 cabinete, bloc sanitar, hol. Perfect pentrucosmetologie,showroom, oficiu, salon de frumusețe, etc. * Toate comunicațiile * Reparație euro * Încălzire autonomă * Prima linie În apropiere: parc, grădinițe, magazine, centre medicale, restaurante, școală, farmacii, bănci, frizerii, oficii, blocuri locative, etc. Zonă de parc cu infrastructură dezvoltată cu flux intens de pietoni. (E.N) Pentru prezentare și alte detaliivizitați www.proimobil.md saune contactați !Parcare Mobilat Depozit Geamuri Gata pentru intrare Supermarket. Telefon: 3737808888 Кишинёв, Ботаника Дачия Предлагается в аренду коммерческое помещениев сект.Ботаника, ул.Дачия.Общая площадь90 кв. м.Состоит из:4 кабинетов, санузел,холл.Идеально подходит длякосметологии, showroom, офиса, салона красоты и т. д.* Все коммуникации* Евроремонт* Автономное отопление* Первая линияРядом: парк, детские сады, магазины, медицинские центры, рестораны, школа, аптеки, банки, парикмахерские, офисы, жилые кварталы и т.д.!Парковая зона с развитой инфраструктурой с интенсивным пешеходным потоком.(E.N.) . Телефон: 3737808888
  • Anunț de la
    сompanie

Amplasare

    • Sectorul
      Botanica
Preţul:1 800 €
Preţul conform cursului Băncii Naţionale a Moldovei 22.04.2026
  • 36 457.02 MDL
  • 2 116.80 USD
  • 158 371.07 RUB
  • 9 176.66 RON
  • 93 407.69 UAH
Un anunț interesant? Impartașiți cu prietenii
  • Chişinău
  • +37378 088886
Loading...