Объявление больше не публикуется на сайте

21595. Продам фасадный земельный участок в ...

250 000 $
Одесса 30 Июня 2025, 23:26 Просмотров: 1228
21595. Продам фасадный земельный участок в ... 21595. Продам фасадный земельный участок в ... 21595. Продам фасадный земельный участок в ... 21595. Продам фасадный земельный участок в ... 21595. Продам фасадный земельный участок в ... 21595. Продам фасадный земельный участок в ...
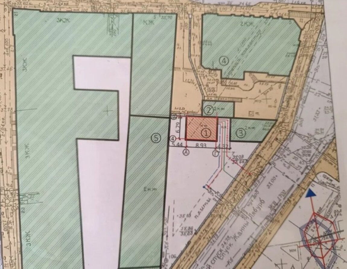
21595. Продам фасадный земельный участок в Центре. Общая площадь 3 сотки. Правильная прямоугольная форма. Все городские коммуникации есть. На участке располагается дом старой постройки. Есть утвержденный проект на новое здание с разрешением на строительство. Проект архитектора Беликова.Идеальный вариант под любой вид бизнеса: мини гостиница, ресторан, офис, частный дом.
  • Объявление от
    компании

Характеристики

  • Площадь
    3 (сотки)

Расположение

    • Район
      Малиновский
Цена:250 000 $
Цена согласно курсу
    • Одесса

    Похожие предложения

    показать ещё
    Загрузка...