Объявление больше не публикуется на сайте

На берегу моря таунхаус в рассрочку

41 800 $
Одесса 12 Февраля 2025, 07:26 Просмотров: 474
На берегу моря таунхаус в рассрочку На берегу моря таунхаус в рассрочку На берегу моря таунхаус в рассрочку На берегу моря таунхаус в рассрочку На берегу моря таунхаус в рассрочку На берегу моря таунхаус в рассрочку На берегу моря таунхаус в рассрочку На берегу моря таунхаус в рассрочку
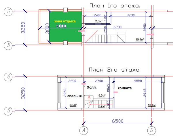
Одесса Черноморка Совиньон, закрытый коттеджный городок берег моря. Один из престижных коттеджей в Одессе у моря.2-х этажный таунхаус с личным местом для парковки автомобиля и своей зоной отдыха.Все городские коммуникации. Отопление газовое.Домик без ремонта от строителей.Массив оснащенный магазинами, кафетериями, офисами, салонами.В городке есть детские испортивные площадки.Круглосуточная охрана.можно приобрести в рассрочку.К центру города можно добраться даже на трамвае.ID 4858
  • Объявление от
    компании

Характеристики

  • Количество этажей
    2 этажа
  • Площадь дома
    46 м²

Расположение

    • Район
      Киевский
Цена:41 800 $
Цена согласно курсу
    • Одесса

    Похожие предложения

    Загрузка...