Объявление больше не публикуется на сайте
продаж 3-к квартира Київ, Голосіївський, 178000 $
178 000 $
Киев
9 Ноября 2025, 06:30
Просмотров: 59
Контакти для зв’язку: 0936974374 Людмила . Продам квартиру в Жк Паркленд.
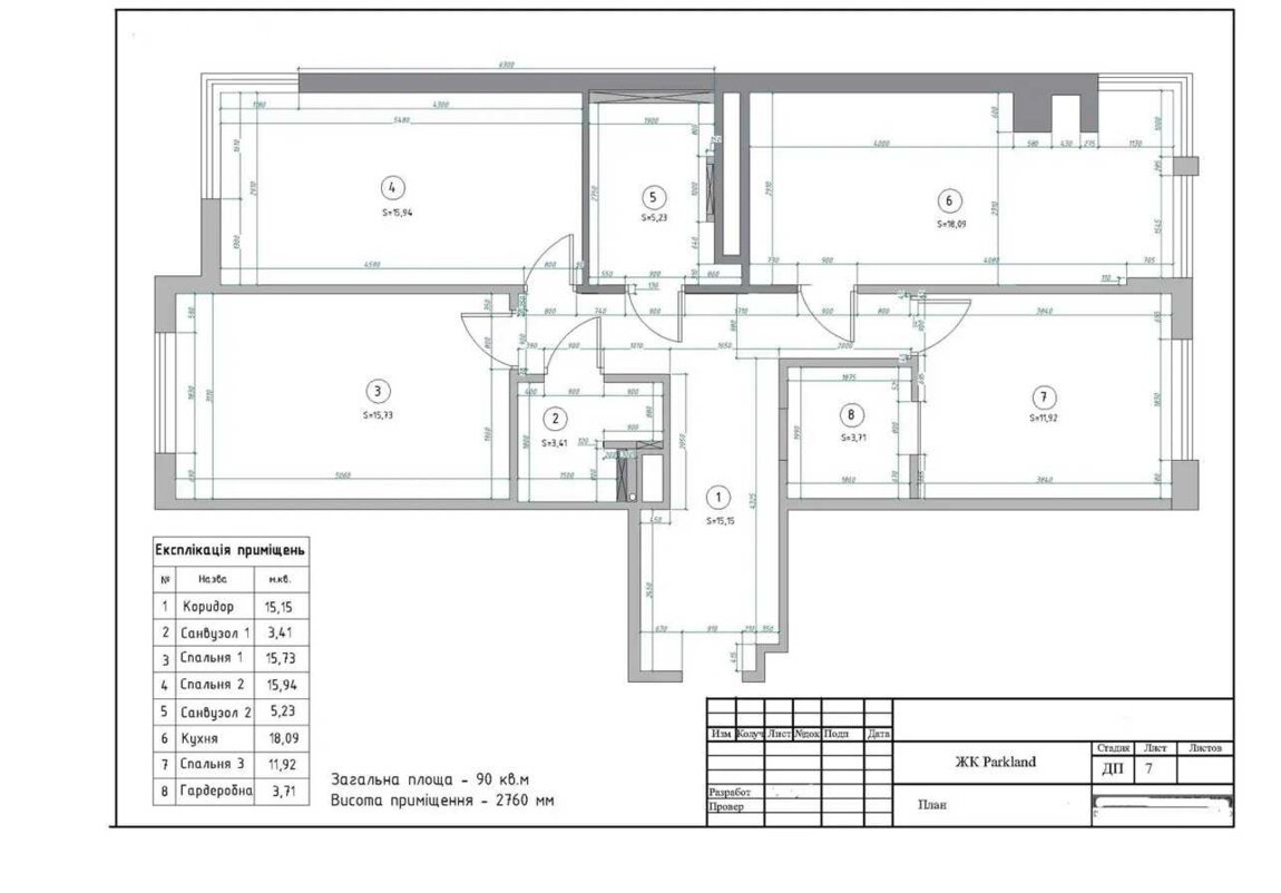
Простора 3-кімнатна квартира, 90 кв.м, на 9 поверсі 9-поверхового будинку.
Зручне планування: три спальні, кухня-вітальня, два санвузли, лоджія.
Опалення: індивідуальне газове двоконтурний котел
Підігрів води: двоконтурний котел
Вбудована техніка: холодильник, посудомийна машина, мікрохвильовка, духовка, варильна поверхня.
Право власності оформлене, без обтяжень, більше 3-х років.
Перегляд за домовленістю.
Будівельні характеристики
- Монолітно-каркасна технологія
- Стіни з газоблоку, утеплення пінопласт
- Висота стель 2, 7 м
- Індивідуальне газове опалення
Панорамний вигляд з вікон
Індивідуальне опалення, система "розумний дім"
Територія під охороною, закрита для сторонніх
Розвинена інфраструктура: магазини, кавярні, фітнес клуб, дитсадок, школа поруч
15 хв до метро "Васильківська"
В комплексі магазин "Траш", "Зелена лавка", поруч магазин Сільпо
В комплексі є декілька стоянок та багаторівневий паркінг
ЖК Parkland це сучасне містечко закритого типу в Соломянському районі Києва, створене за концепцією місто в місті. Комплекс розташований на межі з Голосіївським районом, що забезпечує поєднання міської інфраструктури з тишею та зеленню передмістя.
Інфраструктура всередині комплексу
На території розміщено понад 30 житлових будинків, продуктові магазини, кавярні, салони краси, фітнес-клуб, стоматологію, аптеки, дитячі центри та поліклініка. Усе необхідн
Простора 3-кімнатна квартира, 90 кв.м, на 9 поверсі 9-поверхового будинку.
Зручне планування: три спальні, кухня-вітальня, два санвузли, лоджія.
Опалення: індивідуальне газове двоконтурний котел
Підігрів води: двоконтурний котел
Вбудована техніка: холодильник, посудомийна машина, мікрохвильовка, духовка, варильна поверхня.
Право власності оформлене, без обтяжень, більше 3-х років.
Перегляд за домовленістю.
Будівельні характеристики
- Монолітно-каркасна технологія
- Стіни з газоблоку, утеплення пінопласт
- Висота стель 2, 7 м
- Індивідуальне газове опалення
Панорамний вигляд з вікон
Індивідуальне опалення, система "розумний дім"
Територія під охороною, закрита для сторонніх
Розвинена інфраструктура: магазини, кавярні, фітнес клуб, дитсадок, школа поруч
15 хв до метро "Васильківська"
В комплексі магазин "Траш", "Зелена лавка", поруч магазин Сільпо
В комплексі є декілька стоянок та багаторівневий паркінг
ЖК Parkland це сучасне містечко закритого типу в Соломянському районі Києва, створене за концепцією місто в місті. Комплекс розташований на межі з Голосіївським районом, що забезпечує поєднання міської інфраструктури з тишею та зеленню передмістя.
Інфраструктура всередині комплексу
На території розміщено понад 30 житлових будинків, продуктові магазини, кавярні, салони краси, фітнес-клуб, стоматологію, аптеки, дитячі центри та поліклініка. Усе необхідн
-
Объявление откомпании
Характеристики
-
Количество комнат3 комнаты
-
Общая площадь90 м²
-
Тип домакирпичный
-
Этаж9
-
Этажность дома9
-
Состояние квартирыне требует ремонта
Цена:178 000 $
- Киев