Объявление больше не публикуется на сайте
Однокомнатная квартира В ЖЕМЧУЖНОМ КВАРТАЛЕ НА КРАСНОВА
40 000 €
Одесса
16 Июня 2025, 19:20
Просмотров: 313
В ПРОДАЖЕ!
Однокомнатная квартира в Одессе в Жемчужном квартале на Краснова с видом в красивый двор
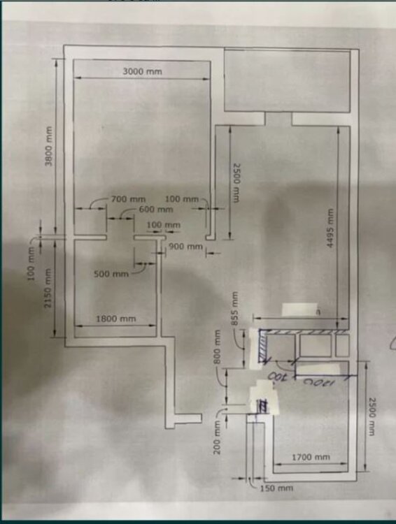
Общая площадь квартиры 41 кв м
Расположена квартира на 8ом этаже 24х этажного нового дома
Квартира правильной комфортной планировки с большой кухней 20 кв м с выходом на открытый балкон
Квартира в состоянии от строителей
Выполнена лазерная стяжка, заведены все коммуникации в квартиру, качественные металлопластиковые окна, радиаторы, входные двери бронированные
Комплекс с индивидуальной внутренней инфраструктурой, включая детсад, школу и торгово-офисные помещения.
Большая благоустроенная территория с аллеями для прогулок, фонтаном и зонами отдыха, детскими и спортивными площадками.
Своя котельная, подземный паркинг, автономный генератор.
Удобная транспортная развязка в любой район города.
ЗВОНИТЕ!
Однокомнатная квартира в Одессе в Жемчужном квартале на Краснова с видом в красивый двор
Общая площадь квартиры 41 кв м
Расположена квартира на 8ом этаже 24х этажного нового дома
Квартира правильной комфортной планировки с большой кухней 20 кв м с выходом на открытый балкон
Квартира в состоянии от строителей
Выполнена лазерная стяжка, заведены все коммуникации в квартиру, качественные металлопластиковые окна, радиаторы, входные двери бронированные
Комплекс с индивидуальной внутренней инфраструктурой, включая детсад, школу и торгово-офисные помещения.
Большая благоустроенная территория с аллеями для прогулок, фонтаном и зонами отдыха, детскими и спортивными площадками.
Своя котельная, подземный паркинг, автономный генератор.
Удобная транспортная развязка в любой район города.
ЗВОНИТЕ!
Характеристики
-
Количество комнат1 комната
-
Тип комнатраздельные
-
Общая площадь41 м²
-
Жилая площадь16 м²
-
Площадь кухни20 м²
-
Тип домамонолитный
-
Тип строенияСдан в эксплуатацию
-
Этаж8
-
Этажность дома24
-
Расположение в домев середине дома
-
Планировкаиндивидуальная
-
Санузелсовмещённый
-
Балкон/лоджия1
-
Парковкаподземная
-
Состояние квартирытребует капитального ремонта
-
Отоплениеавтономное на дом
Расположение
-
Улицакраснова
-
Номер дома3
-
РайонМалиновский
Цена:40 000 €
- Одесса