Chişinău
Chişinău
24 Martie 2026, 11:15
Vizualizări: 179
- DialogImobil
- Anunțuri pe site: 19
- Vezi toate anunțurile autorului
- Abonează-te la autor
https://dialogimobil.md/ro/commercials/31
Se dă în chirie spațiu comercial, situat în sect. Rîșcani, pe str. Albișoara.
Disponibile etajele 2 și 3
Suprafața:
• Etajul 2 — 164 m²
• Etajul 3 — 199 m²
Prețul chiriei:
• Etajul 2 — 12 €/m²
• Etajul 3 — 8 €/m²
Este disponibil spre chirie și etajul 1, cu o suprafață de 90 m²!
Impozit pe persoană fizică: 12%
Compartimentare:
• Etajul 2: 2 birouri separate (1 birou – 47 m², 2 birou – 117 m²), coridor, 2 grupuri sanitare
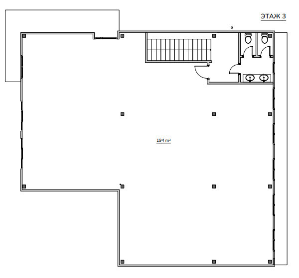
• Etajul 3: open space, coridor, grup sanitar
Caracteristici:
• Intrare separată
• Geamuri termopan
• Tavane înalte
• Locație prestigioasă, cu acces la transport
Ideal pentru:
salon de frumusețe, birou, showroom sau orice alt tip de activitate comercială profitabilă.
În apropiere:
centre de afaceri, bănci, supermarketuri, restaurante și cafenele, săli de fitness și stații de transport public.
Pentru mai multe informații, sunați chiar acum!
dialogimobil. md
instagram. com/dialogimobil
facebook. com/dialogimobil
Se dă în chirie spațiu comercial, situat în sect. Rîșcani, pe str. Albișoara.
Disponibile etajele 2 și 3
Suprafața:
• Etajul 2 — 164 m²
• Etajul 3 — 199 m²
Prețul chiriei:
• Etajul 2 — 12 €/m²
• Etajul 3 — 8 €/m²
Este disponibil spre chirie și etajul 1, cu o suprafață de 90 m²!
Impozit pe persoană fizică: 12%
Compartimentare:
• Etajul 2: 2 birouri separate (1 birou – 47 m², 2 birou – 117 m²), coridor, 2 grupuri sanitare
• Etajul 3: open space, coridor, grup sanitar
Caracteristici:
• Intrare separată
• Geamuri termopan
• Tavane înalte
• Locație prestigioasă, cu acces la transport
Ideal pentru:
salon de frumusețe, birou, showroom sau orice alt tip de activitate comercială profitabilă.
În apropiere:
centre de afaceri, bănci, supermarketuri, restaurante și cafenele, săli de fitness și stații de transport public.
Pentru mai multe informații, sunați chiar acum!
dialogimobil. md
instagram. com/dialogimobil
facebook. com/dialogimobil
Сaracteristici
-
Tipul de imobiliareBirou
-
Suprafaţa totală199
Amplasare
-
Stradastr. Albișoara
-
SectorulRâşcani
Preţul:1 550 €
- Chişinău
- +37360 888816
- +37369188884