Украина
Одесса
2 Aprilie 2026, 19:26
Vizualizări: 11
- slava_domstar
- Anunțuri pe site: 82
- Vezi toate anunțurile autorului
- Abonează-te la autor
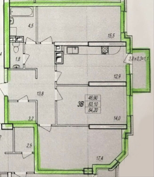
Продам просторную трехкомнатную квартиру в Киевском районе на Таирово в новом ЖК Дмитриевский 3 (Люстдорфська дорога 55/6), через дорогу от ЖК Альтаир 1 и ЖК Одиссей.
Этаж 10 (17)
Общая площадь 84,2 м², кухня-студия 12,9 м²
Удобная одностороняя планировка, балкон.
Три отдельные спальни. Гардеробная.
Раздельный санузел.
Состояние от строителей. Стены монолит и керамоблок.
Дом сдан в 2019 году и полностью заселен.
Закрытая охраняемая территория, подземный паркинг, охрана и видеонаблюдение, своя крышная котельная, генератор.
Во дворе комплекса есть детская площадка, магазины, кафе, пиццерия, клиника, салоны красоты и детские секции
Удобная транспортная развязка, начало Таирово, близко к Черемушкам, до Аркадии, моря и пляжа - 10 минут на автомобиле.
Продажа по переуступке (оплачивает продавец).
Ключи на руках, показ в удобное время.
Видео по запросу.
Продам простору трикімнатну квартиру в Київському районі на Таїрово в новому ЖК Дмитрієвський 3 (Люстдорфська дорога 55/6), через дорогу від ЖК Альтаїр 1 та ЖК Одіссей.
Поверх 10 (17)
Загальна площа 84,2 м², кухня-студія 12,9 м²
Зручне одностороннє планування, балкон.
Три окремі спальні. Гардеробна.
Роздільний санвузол.
Стан від будівельників. Стіни моноліт та керамоблок.
Будинок зданий у 2019 році та повністю заселений.
Закрита територія, що охороняється, підземний паркінг, охорона та відеоспостереження, своя дахова котельня, генератор.
У дворі комплексу є дитячий майданчик, магазини, кафе, піцерія, клініка, салони краси та дитячі секції.
Зручна транспорт
Этаж 10 (17)
Общая площадь 84,2 м², кухня-студия 12,9 м²
Удобная одностороняя планировка, балкон.
Три отдельные спальни. Гардеробная.
Раздельный санузел.
Состояние от строителей. Стены монолит и керамоблок.
Дом сдан в 2019 году и полностью заселен.
Закрытая охраняемая территория, подземный паркинг, охрана и видеонаблюдение, своя крышная котельная, генератор.
Во дворе комплекса есть детская площадка, магазины, кафе, пиццерия, клиника, салоны красоты и детские секции
Удобная транспортная развязка, начало Таирово, близко к Черемушкам, до Аркадии, моря и пляжа - 10 минут на автомобиле.
Продажа по переуступке (оплачивает продавец).
Ключи на руках, показ в удобное время.
Видео по запросу.
Продам простору трикімнатну квартиру в Київському районі на Таїрово в новому ЖК Дмитрієвський 3 (Люстдорфська дорога 55/6), через дорогу від ЖК Альтаїр 1 та ЖК Одіссей.
Поверх 10 (17)
Загальна площа 84,2 м², кухня-студія 12,9 м²
Зручне одностороннє планування, балкон.
Три окремі спальні. Гардеробна.
Роздільний санвузол.
Стан від будівельників. Стіни моноліт та керамоблок.
Будинок зданий у 2019 році та повністю заселений.
Закрита територія, що охороняється, підземний паркінг, охорона та відеоспостереження, своя дахова котельня, генератор.
У дворі комплексу є дитячий майданчик, магазини, кафе, піцерія, клініка, салони краси та дитячі секції.
Зручна транспорт
Сaracteristici
-
Numărul de camere3 camere
-
Tipul de camereseparate
-
Suprafaţa totală85 m²
-
Suprafaţa bucătăriei13 m²
-
Tipul caseide cărămidă
-
Tipul clădiriiDat în exploatare
-
Etaj10
-
Etaje17
-
Locul de amplasare în casăIn mijlocul casei
-
Planificareindividuală
-
Grup sanitarseparat
-
Balcon/lojă1
-
Parcaresubterană
-
Starea apartamentuluinecesită reparaţie capitală
-
Încălzireautonomă pt casă
Amplasare
-
StradaЛюстдорфская дорога
-
Numărul casei56
-
SectorulТаирова
Preţul:75 800 $
- Одесса
- +380637 357100